Toate categoriile

Notificări
Marchează ca citite

Test notification

Anunturi salvate

Lorem ipsum dolor sit amet consectetur adipisicing elit. Doloremque soluta voluptatum omnis praesentium earum iste corrupti quos modi reprehenderit minima odio quam, dolore, repellat tempore! Recusandae ipsum odit nostrum nam.

Logo Welhome Imobiliare logo
Penthouse cu terasa de 200 mp, Sibiu, COMISION 0
Agenție | Welhome Imobiliare
Penthouse cu terasa de 200 mp, Sibiu, COMISION 0
Sibiu Jud.Sibiu

260.000

Descriere

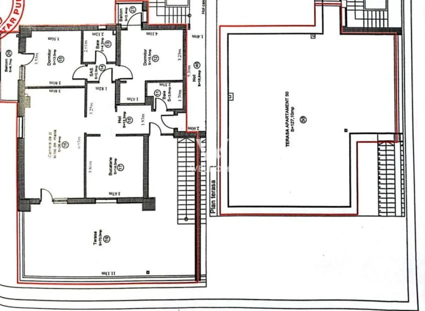
Va prezentam un apartament spatios tip penthouse, situat in Sibiu,pe Calea Surii Mici, la distanta mica de centrul orasului si multe alte puncte de interes.
Beneficiaza de 2 terase mari, cu priveliste asupra orasului si a muntilor.

Suprafata utila: 91mp
Suprafata terase: 200mp

Compartimentare:
Hol, bucatarie, baie, camara, doua dormitoare, dressing, baie, living cu iesire pe terasa
Terasa de pe primul nivel are 127 mp si ofera acces si pe cea de a doua terasa, la fel de generoasa, ambele cu vedere panoramica.

Stadiu de predare este LA CHEIE INTERIOR/EXTERIOR cu materiale premium, prize si intrerupatoare Schneider, sistem audio cu boxe montate in tot apartamentul si instalatie de climatizare, lumini ambientale, usi, terase pregatite pentru jacuzzi/piscina.
Finisaje de calitate superioara.

Blocul este intabulat, mutarea se poate face in timp scurt de la achizitie.
2 locuri de parcare incluse in pret, unul suprateran si unul subteran.

Pret: 260.000 euro TVA INCLUS
Comision agentie 0%
Detalii si vizionare: 0752.088.381- Roxana

09.03.2026 13:41
Particularități
Etaj Etaj 6
Confort Confort Lux
Nr. băi 2 băi
Condiție Stare bună
Nr. Camere 3 camere
Tip imobil Bloc apartamente
Destinație Apartament la cheie, Apartament penthouse, Apartament Intabulat
Compartimentare Decomandat
Anul construcției 2024
Suprafață utilă 91
Suprafață construită 120
Facilități

Conectivitate

  • Internet Fibra optică
  • TV prin cablu
  • Wi-Fi

Finisaje & Eficiență

  • Izolație termică
  • Geamuri termopan
  • Parchet
  • Gresie/Faianță

Utilități esențiale

  • Curent electric
  • Apă curentă
  • Canalizare
  • Gaz

Facilități - Dotări speciale

  • Supraveghere video
  • Centrală proprie
  • Lift
  • Interfon

Facilități - Spații exterioare

  • Loc de parcare
  • Garaj
Detalii vânzător
Logo Welhome Imobiliare logo
Welhome Imobiliare
Agenție
Vezi profil
Membru din: 22.12.2025
Calculator credit ipotecar
10%
80%
15%
EUR
1 an
35 ani
35 ani

Logo Welhome Imobiliare logo
Ultima activitate: 3 luni în urmă

Vrei mai multe detalii despre acest imobil ?

Lasă-ți datele de contact pentru a lua legătura direct cu proprietarul. Vei fi sunat în cel mai scurt timp pentru detalii despre acest imobil.

Număr telefon invalid! Te rugăm introdu numele!
Prin trimiterea solicitării confirmi că ai citit și ești de acord cu [Termenii și condițiile] și [Politica de confidențialitate] Imospot.ro.

Distribuie această listare

sau

Alte anunțuri ale utilizatorului

Poate te interesează

Filtre