Toate categoriile

Notificări
Marchează ca citite

Test notification

Anunturi salvate

Lorem ipsum dolor sit amet consectetur adipisicing elit. Doloremque soluta voluptatum omnis praesentium earum iste corrupti quos modi reprehenderit minima odio quam, dolore, repellat tempore! Recusandae ipsum odit nostrum nam.

Logo Daro Imobilare logo
🏡 Apartament 2 camere de vânzare – Maurer Residence
Agenție | Daro Imobilare
🏡 Apartament 2 camere de vânzare – Maurer Residence
Târgu Mureș Jud.Mures

129.800

Descriere

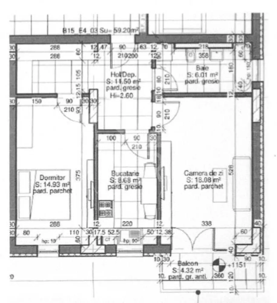
🏡 Apartament 2 camere de vânzare – Maurer Residence | Parcare + Boxă | 59 mp Se oferă spre vânzare apartament modern cu 2 camere, situat în complexul rezidențial Maurer Residence – Târgu Mureș, ideal pentru cei care își doresc confort premium și mutare imediată fără investiții suplimentare. 📅 Disponibil la sfârșitul lunii aprilie. 📐 Suprafață și compartimentare: ✔ suprafață utilă: 59,2 mp ✔ balcon: 4,3 mp – ideal pentru relaxare ✔ boxă proprie: 2,4 mp (spațiu suplimentar de depozitare) ✔ loc de parcare exterior inclus în preț 📍 Compartimentare: ✔ living spațios ✔ dormitor ✔ bucătărie ✔ baie ✔ hol generos (se poate amenaja birou) ✔ balcon ✨ Dotări și finisaje (se vinde exact ca în poze): ✔ bucătărie cu mobilier la comandă ✔ electrocasnice moderne: frigider, cuptor, plită, hotă ✔ baie spațioasă cu finisaje de calitate ✔ mașină de spălat rufe ✔ mobilier modern în living și dormitor ✔ pat matrimonial ✔ canapea extensibilă ✔ spații generoase de depozitare ✔ centrală termică proprie ✔ izolație termică foarte bună (costuri reduse la întreținere) 🌿 Avantajele zonei: ✔ ansamblu rezidențial modern și monitorizat ✔ spații verzi și locuri de joacă ✔ comunitate tânără și liniștită ✔ aproape de supermarketuri ✔ acces facil la transportul în comun 🤝 Proprietate promovată prin DARO Imobiliare 📞 Detalii și vizionări: Coman Maria – DARO Imobiliare & Kiwi Finance 📱 0749 535 729 💳 Ai nevoie de finanțare pentru achiziție? Prin Kiwi Finance beneficiezi de: ✔ analiză GRATUITĂ a eligibilității ✔ oferte de la peste 12 bănci ✔ negocierea dobânzii în favoarea ta ✔ suport complet până la obținerea creditului 🏡 DARO Imobiliare – găsim locuința potrivită. 💳 Kiwi Finance – te ajutăm să devii proprietar.

09.03.2026 14:17
Particularități
Etaj Etaj 4
Nr. Camere 2 camere
Compartimentare Decomandat
Anul construcției 2023
Suprafață utilă 59
Facilități

Momentan, această proprietate nu are facilități specificate.

Detalii vânzător
Logo Daro Imobilare logo
Daro Imobilare
Agenție
Vezi profil
Membru din: 16.02.2026
Calculator credit ipotecar
10%
80%
15%
EUR
1 an
35 ani
35 ani

Logo Daro Imobilare logo
Agenție
Ultima activitate: 0 secunde în urmă

Lasă-ți datele de contact pentru a lua legătura direct cu proprietarul. Vei fi sunat în cel mai scurt timp pentru detalii despre acest imobil.

Număr telefon invalid! Te rugăm introdu numele!
Prin trimiterea solicitării confirmi că ai citit și ești de acord cu [Termenii și condițiile] și [Politica de confidențialitate] Imospot.ro.

Distribuie această listare

sau

Poate te interesează

Filtre