Toate categoriile

Notificări
Marchează ca citite

Test notification

Anunturi salvate

Lorem ipsum dolor sit amet consectetur adipisicing elit. Doloremque soluta voluptatum omnis praesentium earum iste corrupti quos modi reprehenderit minima odio quam, dolore, repellat tempore! Recusandae ipsum odit nostrum nam.

Logo Welhome Imobiliare logo
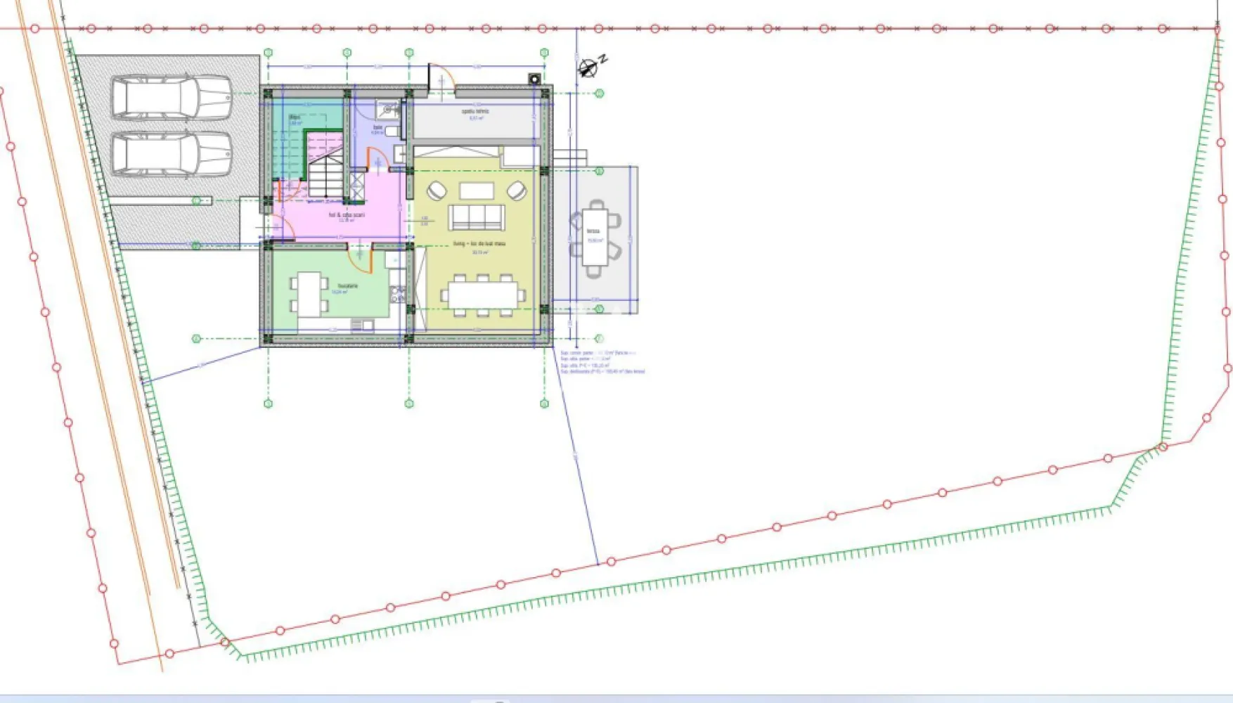
Casa individuala in Tocile - Sibiu
Agenție | Welhome Imobiliare
Casa individuala in Tocile - Sibiu
Sadu Jud.Sibiu

279.000

Descriere

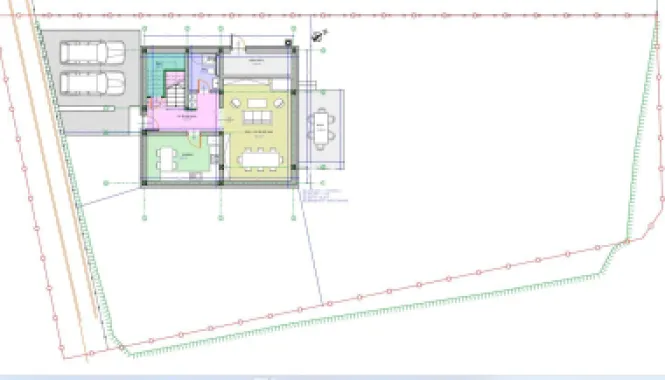
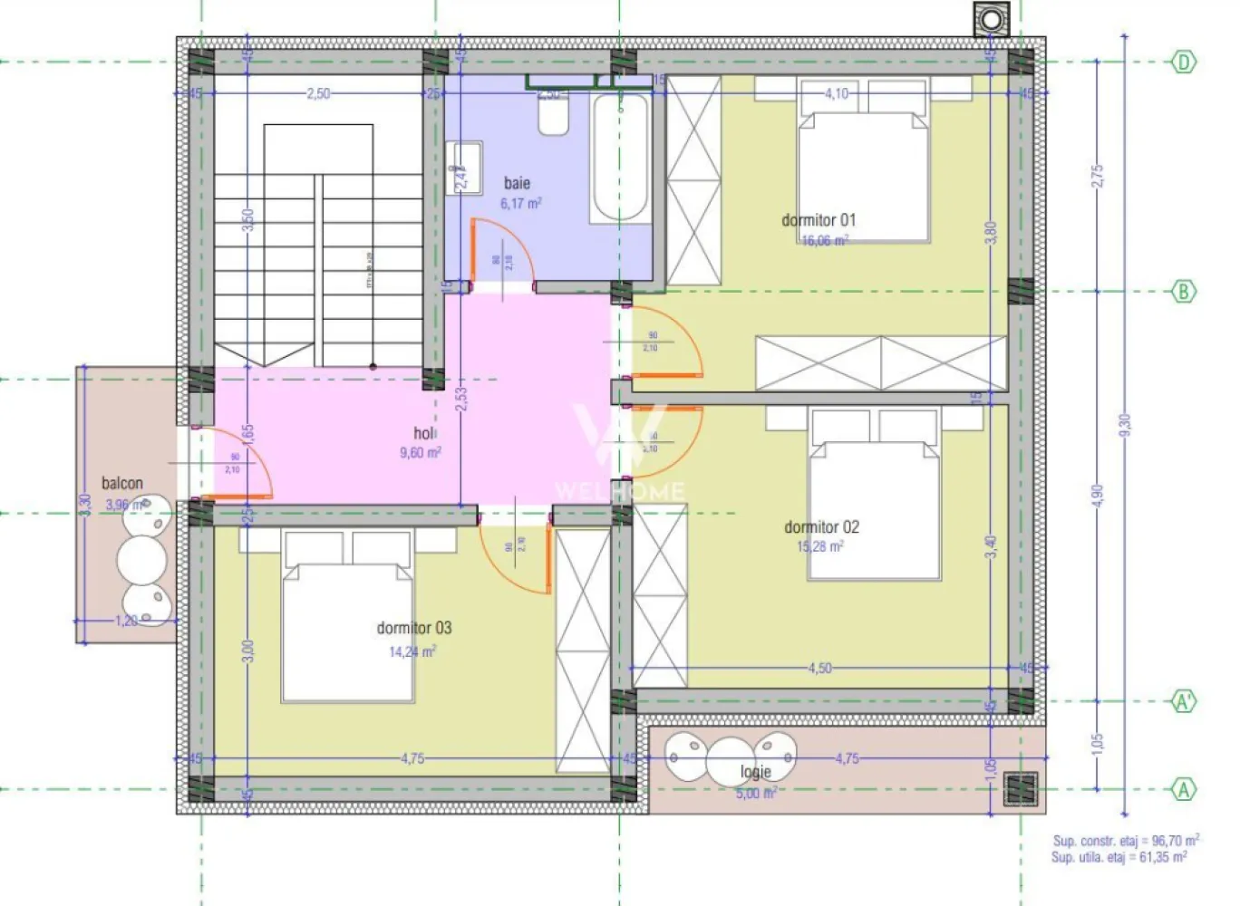
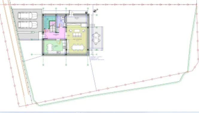
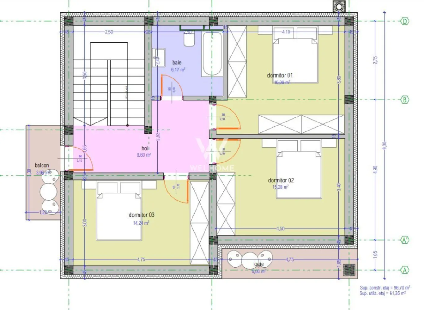
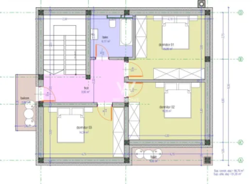
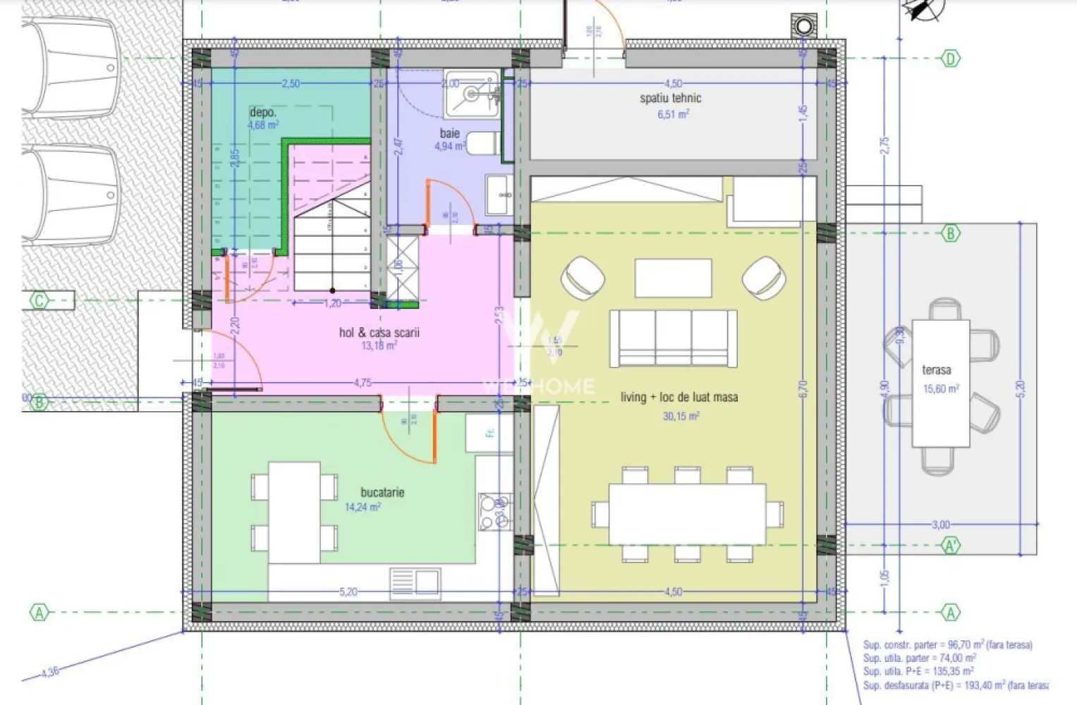
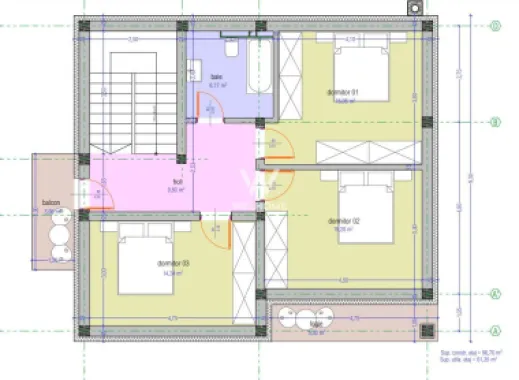
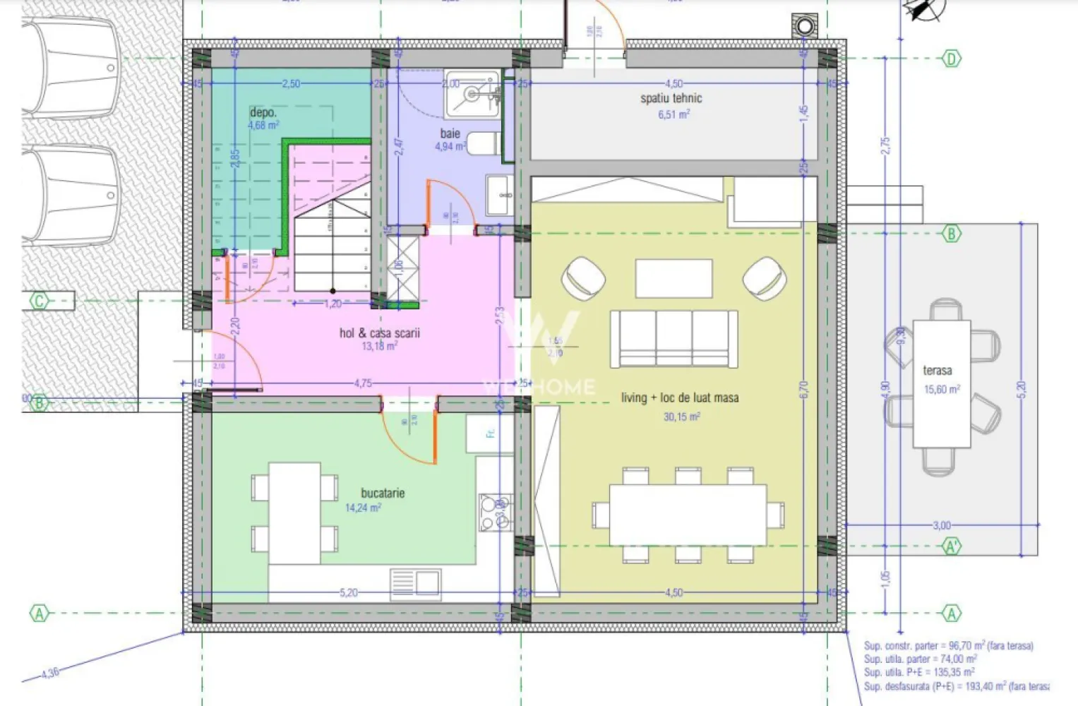
Casa cu priveliste catre munti, pozitionata pe soare, carport pentru masina si cu acces de la 2 strazi. Cu acces de la strada asfaltata si intr-o zona linistita, casa vine cu curtea la cheie, pavaj acces auto si pietonal. Are o suprafata utila de 135mp distribuiti pe 2 nivele. Parter: hol mare de acces, bucatarie separata, living, baie mare, camera tehnica. ETAJ: 3 dormitoare, hol mare spatios, baie mare, pod cu acces pentru depozitare. Se preda cu toate utilitatile: apa, curent, fosa septica/canalizare De mentionat ca in zona este aprobat proiectul de gaz. Casa va avea dubla functionalitate ca si metoda de caldura. Interiorul casei se preda la ALB: pereți tencuiți, gletuiți, plus strat de lavabila, pardoseala cu șapă mecanizată, instalații electrice, tablou electric curenți tari și curenți slabi, instalație sanitară completă, fără obiecte sanitare, încălzire în pardoseală TECE, pompa de caldura. infrastructură cablatăpentru termostate, ușă la intrare. Exteriorul casei de preda la CHEIE: Fațada cu tencuială decorativă in 2 culori, tâmplărie din PVC cu 3 foi de sticlă și profil de 5 camere culoare deosebita, glafuri la geamuri, pe exterior, gard metalic cu fundatie beton, cu poartă de acces pietonală, carport lemn cu acces direct pentru 2 autoturisme, pavaj. Imobilul este situat in zona de case si cabane, unde toate locuintele beneficiaza de priveliste si liniste. Termen de predare - August 2025. Pret: 279.000 euro negociabil.

10.02.2026 11:54
Particularități
Etaj Etaj 0
Nr. băi 2 băi
Nr. Camere 4 camere
Tip imobil Casă individuală
Suprafață curte 600
Suprafață teren 700
Suprafață utilă 135
Suprafață construită 193
Facilități

Utilități esențiale

  • Curent electric
  • Apă curentă
Detalii vânzător
Logo Welhome Imobiliare logo
Welhome Imobiliare
Agenție
Vezi profil
Membru din: 22.12.2025
Calculator credit ipotecar
10%
80%
15%
EUR
1 an
35 ani
35 ani

Logo Welhome Imobiliare logo
Ultima activitate: 2 luni în urmă

Vrei mai multe detalii despre acest imobil ?

Lasă-ți datele de contact pentru a lua legătura direct cu proprietarul. Vei fi sunat în cel mai scurt timp pentru detalii despre acest imobil.

Număr telefon invalid! Te rugăm introdu numele!
Prin trimiterea solicitării confirmi că ai citit și ești de acord cu [Termenii și condițiile] și [Politica de confidențialitate] Imospot.ro.

Distribuie această listare

sau

Alte anunțuri ale utilizatorului

Poate te interesează

Filtre