Toate categoriile

Notificări
Marchează ca citite

Test notification

Anunturi salvate

Lorem ipsum dolor sit amet consectetur adipisicing elit. Doloremque soluta voluptatum omnis praesentium earum iste corrupti quos modi reprehenderit minima odio quam, dolore, repellat tempore! Recusandae ipsum odit nostrum nam.

Logo Welhome Imobiliare logo
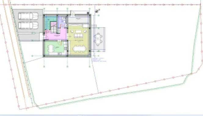
Casa individuala Teren 705 mp Tocile-Sibiu. Sau schimb cu apartamente
Agenție | Welhome Imobiliare
Casa individuala Teren 705 mp Tocile-Sibiu. Sau schimb cu apartamente
Sadu Jud.Sibiu

279.000

Descriere

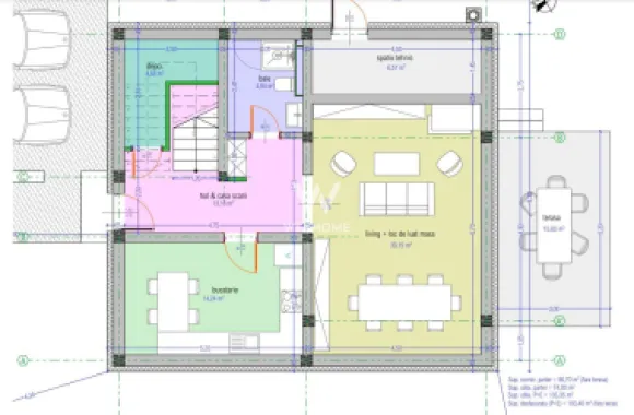
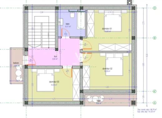
Casa cu priveliste catre munti, pozitionata pe soare, carport pentru masina si cu acces de la 2 strazi. Cu acces de la strada asfaltata si intr-o zona linistita, casa vine cu curtea la cheie, pavaj acces auto si pietonal. Are o suprafata utila de 135mp distribuiti pe 2 nivele. Parter: -Hol mare de acces -Bucatarie separata -living -baie mare -camera tehnica ETAJ: -3 dormitoare -Hol mare spatios -O baie mare -Pod cu acces pentru spatii de depozitare Se preda cu toate utilitatile: -apa -energie electrica -fosa septica/canalizare De mentionat ca in zona este aprobat proiectul de gaz. Casa va avea dubla functionalitate ca si metoda de caldura. La interior se preda la ALB, pregatita pentru a-ti pune singur finisajele. Exteriorul se preda la CHEIE. Imobilul este situat in zona de case si cabane, unde toate locuintele beneficiaza de priveliste si liniste. Termen de predare - August 2025. Se accepta schimb cu apartamente in Sibiu. Pret: 279.000 euro negociabil.

20.03.2026 20:44
Particularități
Etaj Etaj 0
Nr. băi 2 băi
Nr. Camere 4 camere
Tip imobil Casă individuală
Suprafață curte 605
Suprafață teren 705
Anul construcției 2025
Suprafață utilă 135
Suprafață construită 193
Facilități

Utilități esențiale

  • Curent electric
  • Apă curentă
Detalii vânzător
Logo Welhome Imobiliare logo
Welhome Imobiliare
Agenție
Vezi profil
Membru din: 22.12.2025
Calculator credit ipotecar
10%
80%
15%
EUR
1 an
35 ani
35 ani

Logo Welhome Imobiliare logo
Ultima activitate: 2 luni în urmă

Vrei mai multe detalii despre acest imobil ?

Lasă-ți datele de contact pentru a lua legătura direct cu proprietarul. Vei fi sunat în cel mai scurt timp pentru detalii despre acest imobil.

Număr telefon invalid! Te rugăm introdu numele!
Prin trimiterea solicitării confirmi că ai citit și ești de acord cu [Termenii și condițiile] și [Politica de confidențialitate] Imospot.ro.

Distribuie această listare

sau

Alte anunțuri ale utilizatorului

Poate te interesează

Filtre