Toate categoriile

Notificări
Marchează ca citite

Test notification

Anunturi salvate

Lorem ipsum dolor sit amet consectetur adipisicing elit. Doloremque soluta voluptatum omnis praesentium earum iste corrupti quos modi reprehenderit minima odio quam, dolore, repellat tempore! Recusandae ipsum odit nostrum nam.

Logo Welhome Imobiliare logo
Casa individuala - Selimbar, Sibiu - NOU
Agenție | Welhome Imobiliare
Casa individuala - Selimbar, Sibiu - NOU
Șelimbăr Jud.Sibiu

250.000

Descriere

Casa individuala noua - Selimbar, Sibiu - spatiu si confort pentru familie
Locatie - in apropierea Scolii si Primariei - strada asfaltata, iluminata
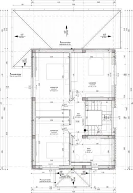
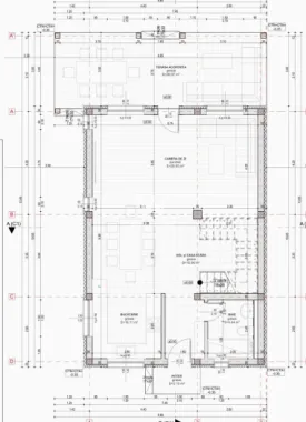
Casa are parter si etaj + pod, cca 120 mp, teren 320 mp
La Parter - hol acces, baie, spatiu tehnic si depozitare, bucatarie open space cu living si acces pe o terasa generoasa acoperita. La cerere se poate separa bucataria.
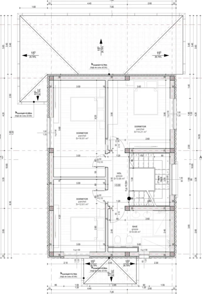
La Etaj sunt 3 dormitoare, hol si baie
Pod - spatiu depozitare sau poate fi adaptat - prevazut cu 2 geamuri tip iluminator si instalatie electrica.
La etaj este placa de beton izolata cu polistiren extrudat pentru o izolare termica si fonica intre etaje.
Casa se preda la interior la stadiu de ALB: pereti finisati cu lavabila, centrala termica, incalzire in pardoseala, termostate in fiecare incapere, instalatii sanitare si electrice pe pozitie, geamuri termopan 5 camere, 3 foi de sticla
Exterior casa la CHEIE: izolatie polistiren 10cm, decorativa, pervaze geamuri, alimentare pentru camere de supraveghere si alarma, poarta acces pietonal si auto, curte pavata cale acces pietonal si parcare auto.
Termen predare - fine an 2025

Pret : 250.000 euro
Telefon: 0756 094 405

21.03.2026 07:41
Particularități
Etaj Etaj 0
Nr. băi 2 băi
Condiție Renovat complet
Nr. Camere 4 camere
Tip imobil Casă individuală
Deschidere front 15 m
Suprafață teren 320
Anul construcției 2025
Suprafață utilă 120
Suprafață construită 144
Facilități

Finisaje & Eficiență

  • Izolație termică
  • Geamuri termopan

Utilități esențiale

  • Curent electric
  • Apă curentă
  • Canalizare
  • Gaz

Facilități - Spații exterioare

  • Curte proprie
  • Grădină
Detalii vânzător
Logo Welhome Imobiliare logo
Welhome Imobiliare
Agenție
Vezi profil
Membru din: 22.12.2025
Calculator credit ipotecar
10%
80%
15%
EUR
1 an
35 ani
35 ani

Logo Welhome Imobiliare logo
Ultima activitate: 3 luni în urmă

Vrei mai multe detalii despre acest imobil ?

Lasă-ți datele de contact pentru a lua legătura direct cu proprietarul. Vei fi sunat în cel mai scurt timp pentru detalii despre acest imobil.

Număr telefon invalid! Te rugăm introdu numele!
Prin trimiterea solicitării confirmi că ai citit și ești de acord cu [Termenii și condițiile] și [Politica de confidențialitate] Imospot.ro.

Distribuie această listare

sau

Alte anunțuri ale utilizatorului

Poate te interesează

Filtre