Toate categoriile

Notificări
Marchează ca citite

Test notification

Anunturi salvate

Lorem ipsum dolor sit amet consectetur adipisicing elit. Doloremque soluta voluptatum omnis praesentium earum iste corrupti quos modi reprehenderit minima odio quam, dolore, repellat tempore! Recusandae ipsum odit nostrum nam.

Logo Welhome Imobiliare logo
Casa MODERNA cu etaj RETRAS, zona Triajului, Selimbar
Agenție | Welhome Imobiliare
Casa MODERNA cu etaj RETRAS, zona Triajului, Selimbar
Șelimbăr Jud.Sibiu

272.000

Descriere

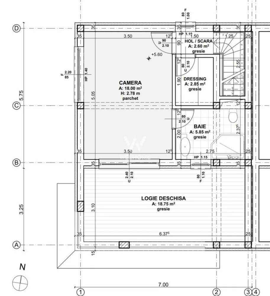
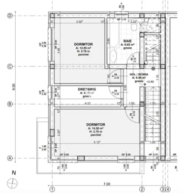
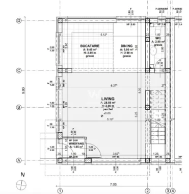
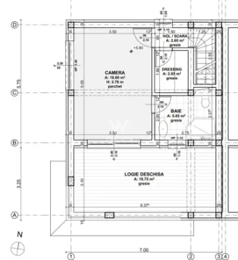
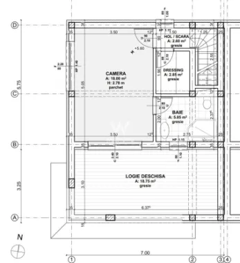
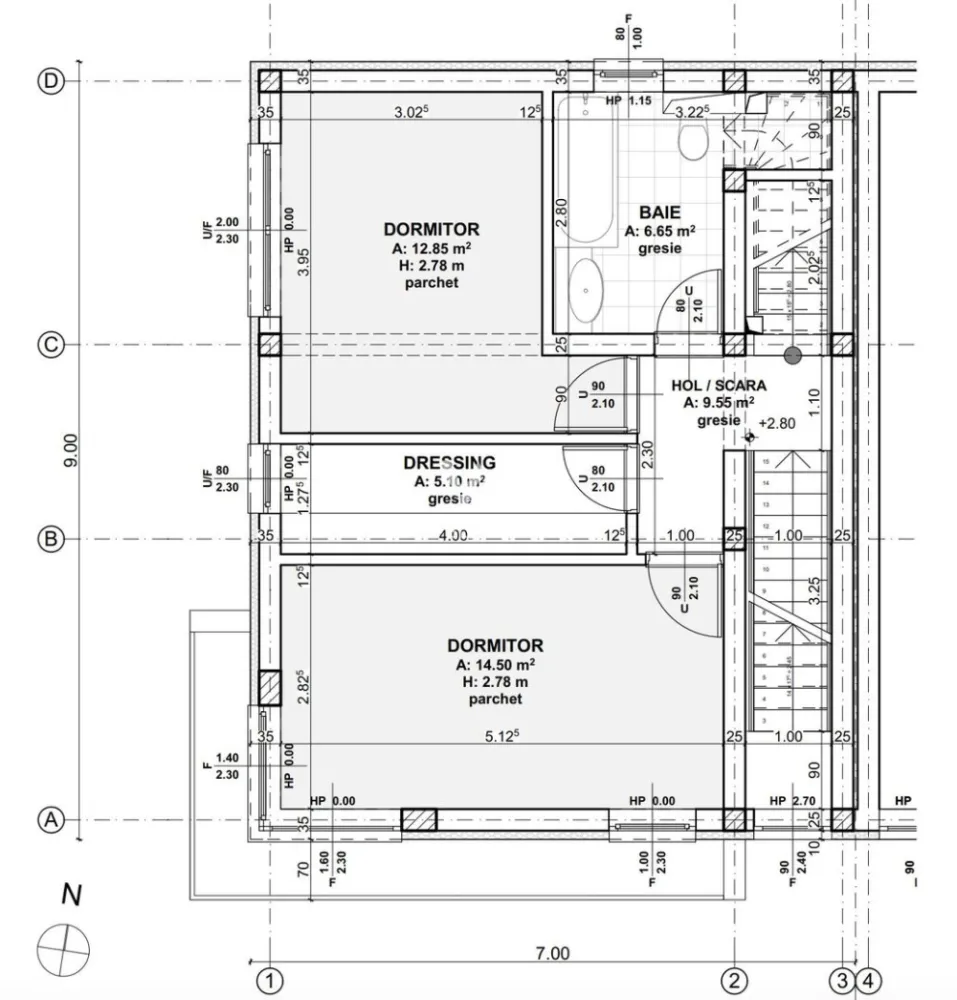
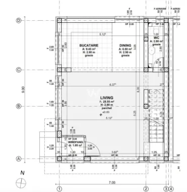
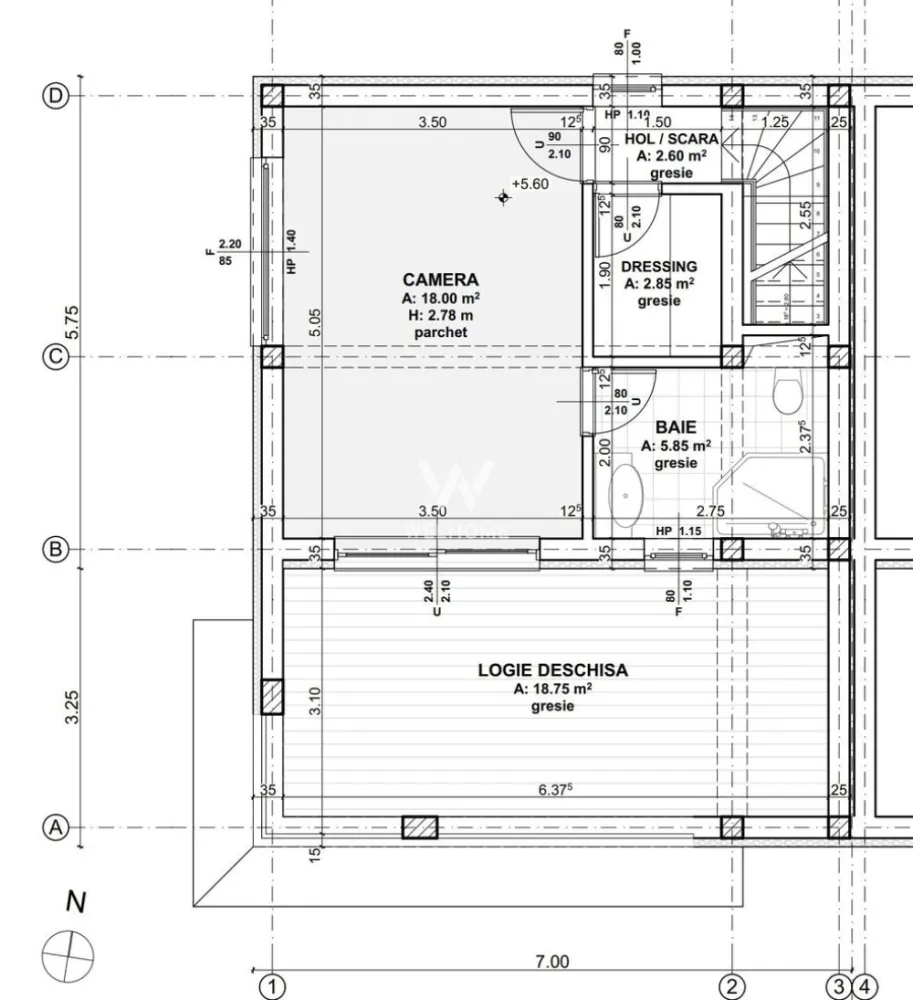
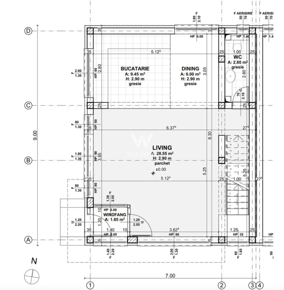
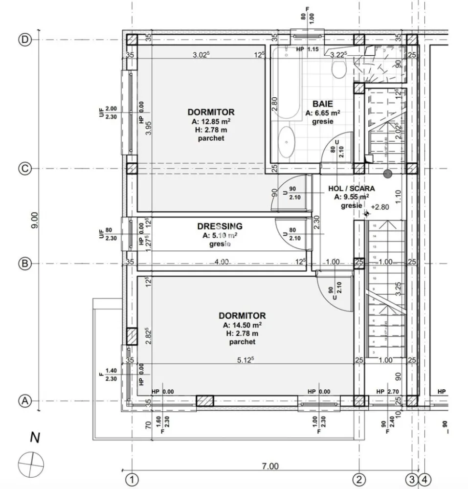
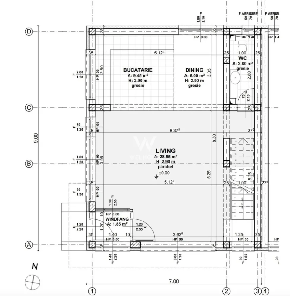
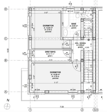
Casa cu design mediteranean, situata in zona strazii Triajului din Selimbar. - Suprafata utila: 138 mp utili + balcon + terasa de 18.75 mp - Suprafata teren: 215 mp Compartimentare: Parter: living spatios, bucatarie cu zona de luat masa, baie, camara/spatiul tehnic sub scari Etaj: 2 dormitoare, baie, un dressing spatios, balcon cu sticla securizata Etaj retras: dormitor, dressing, baie, o terasa tip logie de 18.75 mp - INTERIOR - LA ALB: centrala + incalzire in pardoseala pe toate nivele, usa la intrare, geamuri termopan, glet si lavabila pe pereti, sapa, toate instalatiile termice, electrice, sanitare pe pozitie. - EXTERIOR - LA CHEIE: complet amenajat, fatada, pavaj premium, gard, poarta pregatita pentru automatizare, gazon, terasa In curte se pot parca cu usurinta 2 masini Accesul la case s eface pe o strada pavata si cu iluminat public, frumos amenajata. (Proiect de case - casa nr 2) *Casa este in curs de executie. O parte dintre fotografii sunt cu titlu de prezentare, de la o casa identica. PRET: 272.000 EURO Se accepta plata cash sau cu credit ipotecar Informatii si vizionari: 0740029352-Ioana Larisa

21.03.2026 07:25
Particularități
Etaj Etaj 0
Nr. băi 2 băi
Condiție Renovat complet
Nr. Camere 4 camere
Tip imobil Triplex
Deschidere front 10 m
Suprafață curte 150
Suprafață teren 215
Anul construcției 2025
Suprafață utilă 138
Suprafață construită 150
Facilități

Finisaje & Eficiență

  • Izolație termică
  • Geamuri termopan

Utilități esențiale

  • Curent electric
  • Apă curentă
  • Canalizare
  • Gaz

Facilități - Spații exterioare

  • Curte proprie
  • Grădină
  • Loc de parcare
Detalii vânzător
Logo Welhome Imobiliare logo
Welhome Imobiliare
Agenție
Vezi profil
Membru din: 22.12.2025
Calculator credit ipotecar
10%
80%
15%
EUR
1 an
35 ani
35 ani

Logo Welhome Imobiliare logo
Ultima activitate: 2 luni în urmă

Vrei mai multe detalii despre acest imobil ?

Lasă-ți datele de contact pentru a lua legătura direct cu proprietarul. Vei fi sunat în cel mai scurt timp pentru detalii despre acest imobil.

Număr telefon invalid! Te rugăm introdu numele!
Prin trimiterea solicitării confirmi că ai citit și ești de acord cu [Termenii și condițiile] și [Politica de confidențialitate] Imospot.ro.

Distribuie această listare

sau

Alte anunțuri ale utilizatorului

Poate te interesează

Filtre