Toate categoriile

Notificări
Marchează ca citite

Test notification

Anunturi salvate

Lorem ipsum dolor sit amet consectetur adipisicing elit. Doloremque soluta voluptatum omnis praesentium earum iste corrupti quos modi reprehenderit minima odio quam, dolore, repellat tempore! Recusandae ipsum odit nostrum nam.

Logo Welhome Imobiliare logo
Casă individuală modernă cu garaj - teren 400 mp – Sura Mare
Agenție | Welhome Imobiliare
Casă individuală modernă cu garaj - teren 400 mp – Sura Mare
Șura Mare Jud.Sibiu

295.000

Descriere

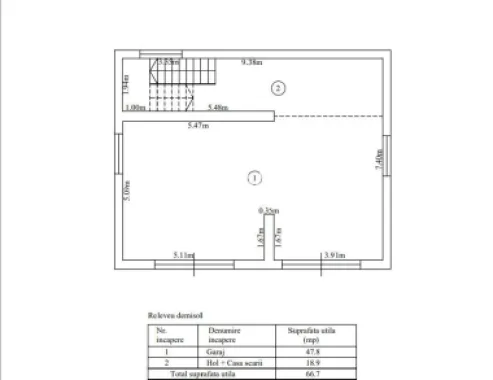
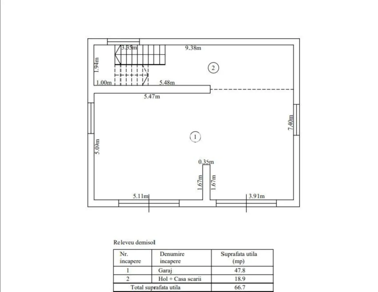
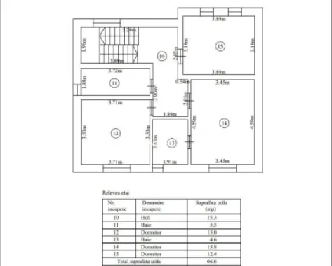
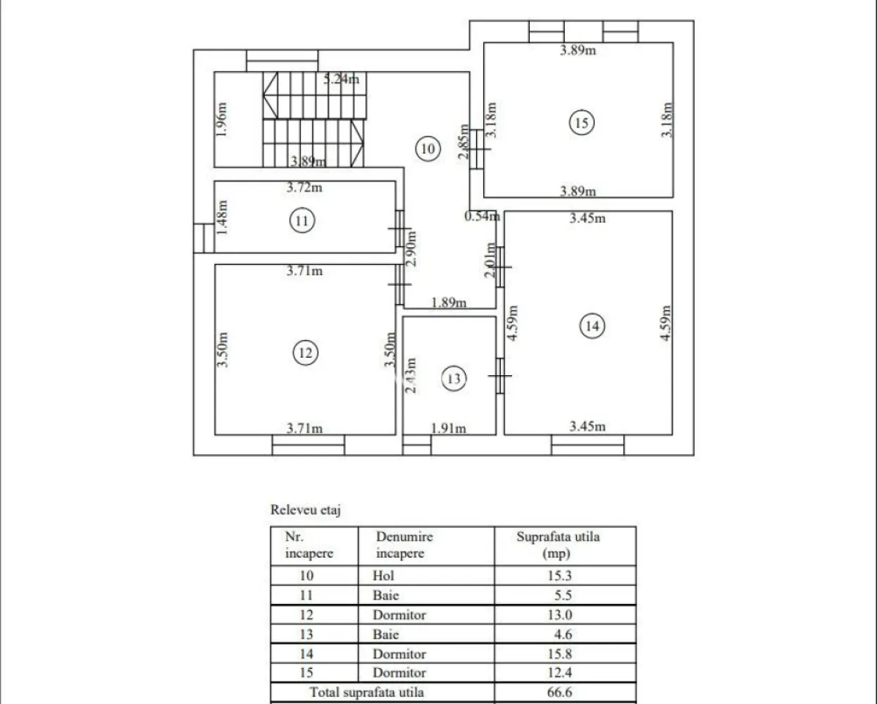
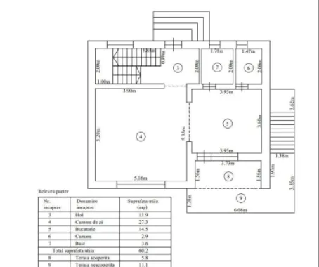
Vă prezentăm o proprietate spațioasă și bine compartimentată, situată într-o zonă liniștită din Viile Sibiului, ideală pentru o familie care își dorește confort, intimitate și spațiu generos atât în interior, cât și în exterior. Casa este dispusă pe demisol, parter și etaj, având o suprafață utilă de 195 mp, la care se adaugă pod pentru depozitare, fiind amplasată pe un teren de aproximativ 400 mp, cu peste 300 mp de curte liberă, majoritatea situată în partea din spate a casei, oferind intimitate și spațiu pentru relaxare. Compartimentare: Demisol: garaj generos pentru 2 mașini, spațiu de depozitare iar in fața casei există încă 2 locuri de parcare. Parter: living spațios și luminos cu bucătărie open space, terasă generoasă de 17 mp, perfectă pentru relaxare sau mese în aer liber, hol de acces, baie, debara. Etaj: 3 dormitoare, dintre care unul este amenajat în prezent ca dressing, un dormitor cu baie proprie si încă o baie mare cu cadă pe hol Pod: spațiu ideal pentru depozitare Proprietatea se vinde mobilată și utilată, cu excepția mobilierului din camera copilului, fiind pregătită pentru mutare rapidă. Curtea spațioasă din spatele casei oferă multă intimitate și posibilitatea amenajării unei zone de relaxare, loc de joacă sau grădină. Suprafață utilă: 195 mp Teren: aprox. 400 mp Terasă: 17 mp Garaj: 2 mașini Parcări în curte: 2 Se acceptă credit ipotecar Preț: 295.000 € Dacă îți dorești o locuință modernă, spațioasă și complet pregătită pentru o familie, această proprietate din Viile Sibiului poate fi exact ceea ce cauți.

05.03.2026 11:25
Particularități
Etaj Etaj 1
Nr. băi 2 băi
Nr. Camere 4 camere
Tip imobil Casă individuală
Suprafață curte 315
Suprafață teren 400
Anul construcției 2024
Suprafață utilă 193
Facilități

Finisaje & Eficiență

  • Izolație termică
  • Geamuri termopan
  • Mobilier integrat / Bucătărie la comandă

Utilități esențiale

  • Curent electric
  • Apă curentă
  • Canalizare
  • Gaz

Facilități - Dotări speciale

  • Aer condiționat

Facilități - Spații exterioare

  • Curte proprie
  • Garaj
Detalii vânzător
Logo Welhome Imobiliare logo
Welhome Imobiliare
Agenție
Vezi profil
Membru din: 22.12.2025
Calculator credit ipotecar
10%
80%
15%
EUR
1 an
35 ani
35 ani

Logo Welhome Imobiliare logo
Ultima activitate: 1 lună în urmă

Lasă-ți datele de contact pentru a lua legătura direct cu proprietarul. Vei fi sunat în cel mai scurt timp pentru detalii despre acest imobil.

Număr telefon invalid! Te rugăm introdu numele!
Prin trimiterea solicitării confirmi că ai citit și ești de acord cu [Termenii și condițiile] și [Politica de confidențialitate] Imospot.ro.

Alte anunțuri ale utilizatorului

Poate te interesează

Filtre