Toate categoriile

Notificări
Marchează ca citite

Test notification

Anunturi salvate

Lorem ipsum dolor sit amet consectetur adipisicing elit. Doloremque soluta voluptatum omnis praesentium earum iste corrupti quos modi reprehenderit minima odio quam, dolore, repellat tempore! Recusandae ipsum odit nostrum nam.

Logo Welhome Imobiliare logo
Casă nouă | 193 mp | Garaj dublu | Curte 315 mp | Mobilată – Șura Mare
Agenție | Welhome Imobiliare
Casă nouă | 193 mp | Garaj dublu | Curte 315 mp | Mobilată – Șura Mare
Șura Mare Jud.Sibiu

295.000

Descriere

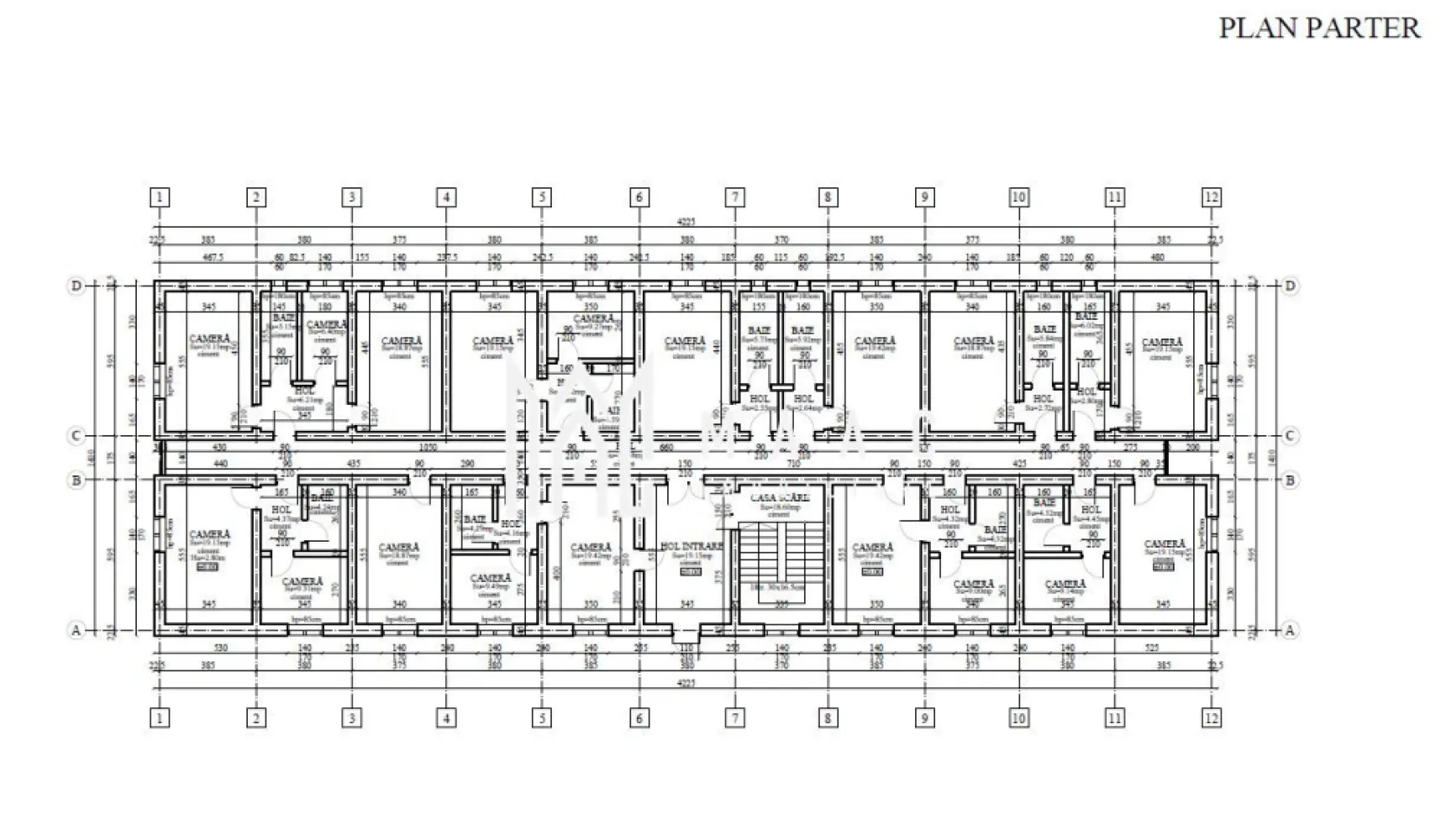
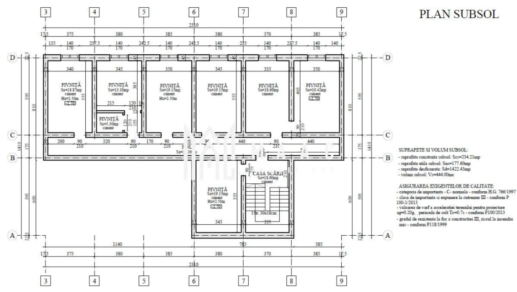
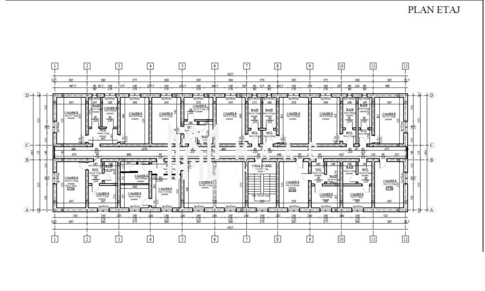
Îți imaginezi dimineața cu cafeaua pe terasa de 17 mp, în timp ce copiii se joacă în siguranță în curtea din spate? Această casă individuală, construită în 2024, face exact asta posibil – la doar 5 minute de Sibiu, într-o zonă liniștită, exclusiv rezidențială. CE PRIMEȘTI: • 193 mp utili pe 3 niveluri (demisol, parter, etaj + pod) • Teren 400 mp – curte liberă de 315 mp în spate, complet privată • Garaj pentru 2 mașini + 2 locuri parcare exterioare • Terasă generoasă de 17 mp • 3 dormitoare (unul cu baie proprie), living open space, 2 băi • Încălzire în pardoseală pe toată suprafața • Aer condiționat inclus PREDARE IMEDIATĂ: Casa se vinde mobilată și utilată complet (excepție: mobilier camera copilului). Te muți fără niciun stres. LOCAȚIE: Șura Mare – Viile Sibiului. Acces rapid la Prima Shopping Center, școli, mijloace de transport. Vedere spre munți și spre oraș. Se acceptă credit ipotecar. Preț: 295.000 € (negociabil) Sună sau scrie pentru o vizionare – disponibilitate imediată.

01.04.2026 13:19
Particularități
Etaj Etaj 1
Nr. băi 2 băi
Nr. Camere 4 camere
Tip imobil Casă individuală
Suprafață curte 315
Suprafață teren 400
Anul construcției 2024
Suprafață utilă 193
Facilități

Finisaje & Eficiență

  • Izolație termică
  • Geamuri termopan
  • Mobilier integrat / Bucătărie la comandă

Utilități esențiale

  • Curent electric
  • Apă curentă
  • Canalizare
  • Gaz

Facilități - Dotări speciale

  • Aer condiționat

Facilități - Spații exterioare

  • Curte proprie
  • Garaj
Detalii vânzător
Logo Welhome Imobiliare logo
Welhome Imobiliare
Agenție
Vezi profil
Membru din: 22.12.2025
Calculator credit ipotecar
10%
80%
15%
EUR
1 an
35 ani
35 ani

Logo Welhome Imobiliare logo
Ultima activitate: 2 luni în urmă

Vrei mai multe detalii despre acest imobil ?

Lasă-ți datele de contact pentru a lua legătura direct cu proprietarul. Vei fi sunat în cel mai scurt timp pentru detalii despre acest imobil.

Număr telefon invalid! Te rugăm introdu numele!
Prin trimiterea solicitării confirmi că ai citit și ești de acord cu [Termenii și condițiile] și [Politica de confidențialitate] Imospot.ro.

Distribuie această listare

sau

Alte anunțuri ale utilizatorului

Poate te interesează

Filtre