Toate categoriile

Notificări
Marchează ca citite

Test notification

Anunturi salvate

Lorem ipsum dolor sit amet consectetur adipisicing elit. Doloremque soluta voluptatum omnis praesentium earum iste corrupti quos modi reprehenderit minima odio quam, dolore, repellat tempore! Recusandae ipsum odit nostrum nam.

Logo MAAC IMOBILIARE logo
Casă modernă | 3 dormitoare | 140 mp curte | 120 mp utili | Preț avantajos
Agenție | MAAC IMOBILIARE
Casă modernă | 3 dormitoare | 140 mp curte | 120 mp utili | Preț avantajos
Șura Mică Jud.Sibiu

127.000

Descriere

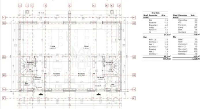
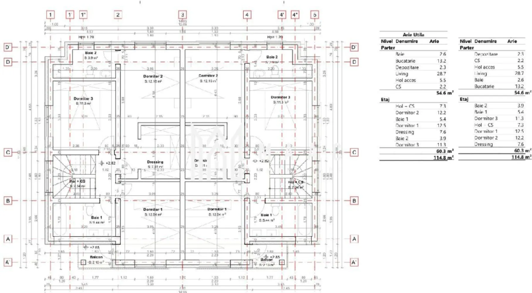
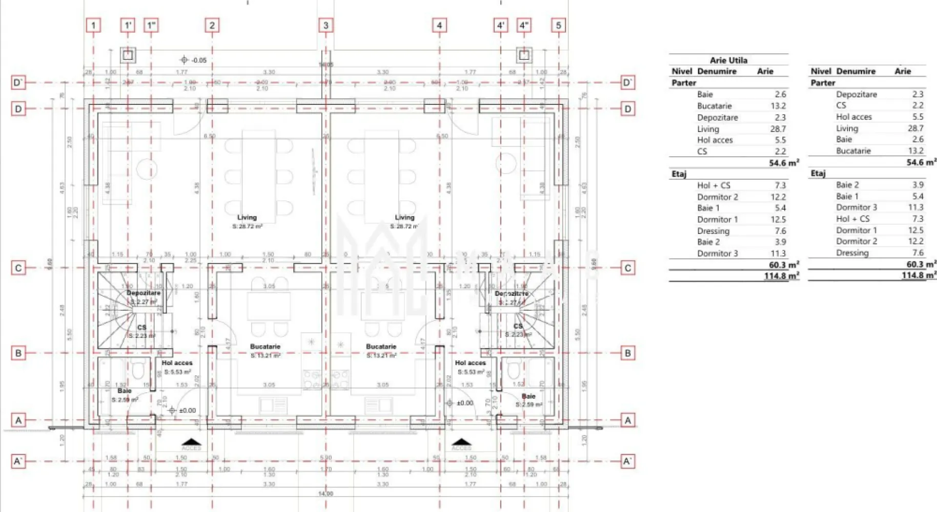
Maac Imobiliare prezintă o casă spațioasă, perfectă pentru o familie, situată într-o zonă liniștită. Aceasta este disponibilă în două variante de achiziție: ✅ 127.000€ – la roșu interior, finisată exterior ✅ 107.000€ – dacă achiziția se face pe firmă (fără TVA) Suprafață și compartimentare: 🏡 Suprafață utilă: 114.8 mp 🌿 Curte: 140 mp 🔹 Parter: Living generos (28.7 mp) Bucătărie spațioasă (13.2 mp) Baie (2.6 mp) Hol acces și spațiu de depozitare 🔹 Etaj: Dormitor matrimonial cu dressing (12.5 mp) și baie proprie (5.4 mp) Dormitor 2: 12.2 mp Dormitor 3: 11.3 mp Baie secundară: 3.9 mp Hol și casa scării 🏡 Locuința oferă o compartimentare inteligentă, cu spații bine optimizate și lumină naturală din abundență.

06.04.2026 21:31
Particularități
Etaj Etaj 0
Nr. băi 2 băi
Nr. Camere 4 camere
Tip imobil Triplex
Destinație Rezidențial
Anul construcției 2024
Suprafață utilă 114.8
Suprafață construită 150
Facilități

Finisaje & Eficiență

  • Izolație termică
  • Geamuri termopan

Utilități esențiale

  • Curent electric
  • Apă curentă
  • Canalizare
  • Gaz

Facilități - Spații exterioare

  • Loc de parcare
Detalii vânzător
Logo MAAC IMOBILIARE logo
MAAC IMOBILIARE
Agenție
Vezi profil
Membru din: 18.12.2025
Calculator credit ipotecar
10%
80%
15%
EUR
1 an
35 ani
35 ani

Logo MAAC IMOBILIARE logo
Ultima activitate: 0 secunde în urmă

Vrei mai multe detalii despre acest imobil ?

Lasă-ți datele de contact pentru a lua legătura direct cu proprietarul. Vei fi sunat în cel mai scurt timp pentru detalii despre acest imobil.

Număr telefon invalid! Te rugăm introdu numele!
Prin trimiterea solicitării confirmi că ai citit și ești de acord cu [Termenii și condițiile] și [Politica de confidențialitate] Imospot.ro.

Distribuie această listare

sau

Alte anunțuri ale utilizatorului

Poate te interesează

Filtre