Toate categoriile

Notificări
Marchează ca citite

Test notification

Anunturi salvate

Lorem ipsum dolor sit amet consectetur adipisicing elit. Doloremque soluta voluptatum omnis praesentium earum iste corrupti quos modi reprehenderit minima odio quam, dolore, repellat tempore! Recusandae ipsum odit nostrum nam.

Logo DIREKT IMOBILIARE logo
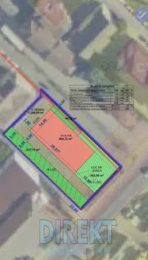
Teren cu Proiect de bloc , Bistrita , zona Clinica Sanovil !
Agenție | DIREKT IMOBILIARE
Teren cu Proiect de bloc , Bistrita , zona Clinica Sanovil !
Bistrița Jud.Bistrita Nasaud

330.000

Descriere

Oportunitate de investiție – Teren pentru dezvoltare imobiliară în Bistrita , zona Clinica Sanovil, cu proiect pentru bloc si autorizatie in curs de executie. Vă prezentăm spre achiziție un teren excelent poziționat în zona Clinica Sanovil, ideal pentru dezvoltări rezidențiale mixte (locuințe + spații comerciale la parter) Localizare premium: – La doar 200 m de Clinica Sanovil , cu deschidere la DN care face legautura intre Bistrita si Cluj Napoca . – În imediata apropiere a Depozitului Macon , zonă cu infrastructură modernizată și în continuă expansiune. Caracteristici teren: Suprafață: 1400 mp Regim de înălțime cf PUZ aprobat prin HCL 937/2021: D +P+4E +2ER Proiectul imobilului cuprinde : Demisol – locuri de parcare subterane Parter -Spatii comerciale + 2 Apartamente , 4 Etaje cu cate 7 apartamente per etaj Mansarda . Acces din DN + Drum acces secundar , Post Trafo , Toate utilitatile pe teren . POT (Procent de Ocupare a Terenului): 35% CUT (Coeficient de Utilizare a Terenului): 1,8 % Avantaje: Zonă cu cerere crescută pe segmentul rezidential, inchirieri. Acces facil către toate punctele de interes din oraș. Investiție cu potențial ridicat de profitabilitate datorită amplasării și regimului urbanistic permisiv. Pentru mai multe detalii sau pentru programarea unei vizionări, vă rugăm să ne contactați.

05.03.2026 17:26
Particularități
Etaj Etaj 1
Destinație Comercial
Poziționare Intravilan
Suprafață teren 1400
Certificat urbanism Eliberat/Valabil
Facilități

Infrastructură

  • Iluminat stradal

Utilități disponibile

  • Curent electric
  • Apă curentă
  • Gaz
  • Canalizare

Facilități suplimentare

  • Drum de acces asfaltat până la proprietate
Detalii vânzător
Logo DIREKT IMOBILIARE logo
DIREKT IMOBILIARE
Agenție
Vezi profil
Membru din: 05.03.2026
Calculator credit ipotecar
10%
80%
15%
EUR
1 an
35 ani
35 ani

Logo DIREKT IMOBILIARE logo
Ultima activitate: 0 secunde în urmă

Vrei mai multe detalii despre acest imobil ?

Lasă-ți datele de contact pentru a lua legătura direct cu proprietarul. Vei fi sunat în cel mai scurt timp pentru detalii despre acest imobil.

Număr telefon invalid! Te rugăm introdu numele!
Prin trimiterea solicitării confirmi că ai citit și ești de acord cu [Termenii și condițiile] și [Politica de confidențialitate] Imospot.ro.

Distribuie această listare

sau

Alte anunțuri ale utilizatorului

Poate te interesează

Filtre