Toate categoriile

Notificări
Marchează ca citite

Test notification

Anunturi salvate

Lorem ipsum dolor sit amet consectetur adipisicing elit. Doloremque soluta voluptatum omnis praesentium earum iste corrupti quos modi reprehenderit minima odio quam, dolore, repellat tempore! Recusandae ipsum odit nostrum nam.

Logo Welhome Imobiliare logo
Casa moderna spatioasa, teren de 350 mp, Sura Mica - Sibiu
Agenție | Welhome Imobiliare
Casa moderna spatioasa, teren de 350 mp, Sura Mica - Sibiu
Șura Mică Jud.Sibiu

240.000

Descriere

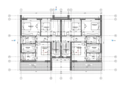
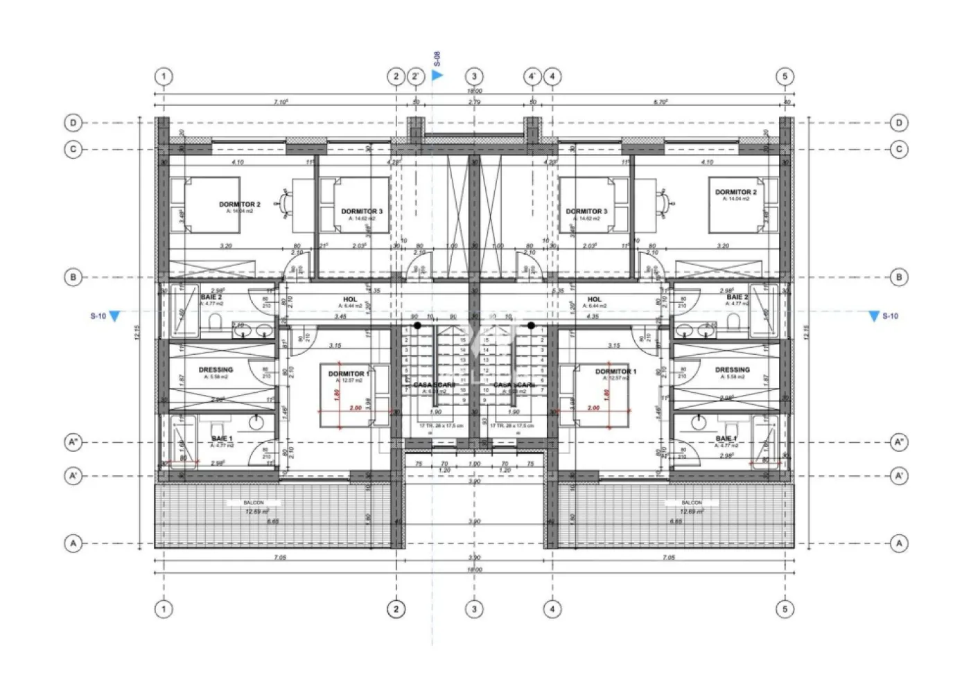
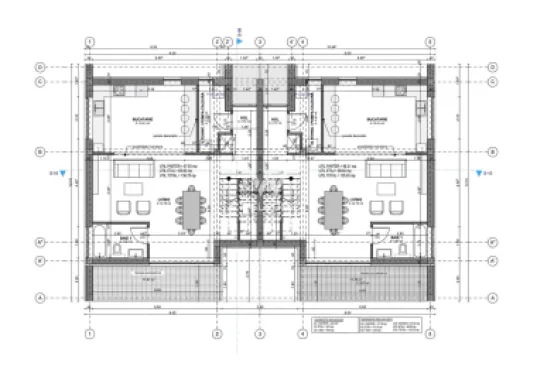
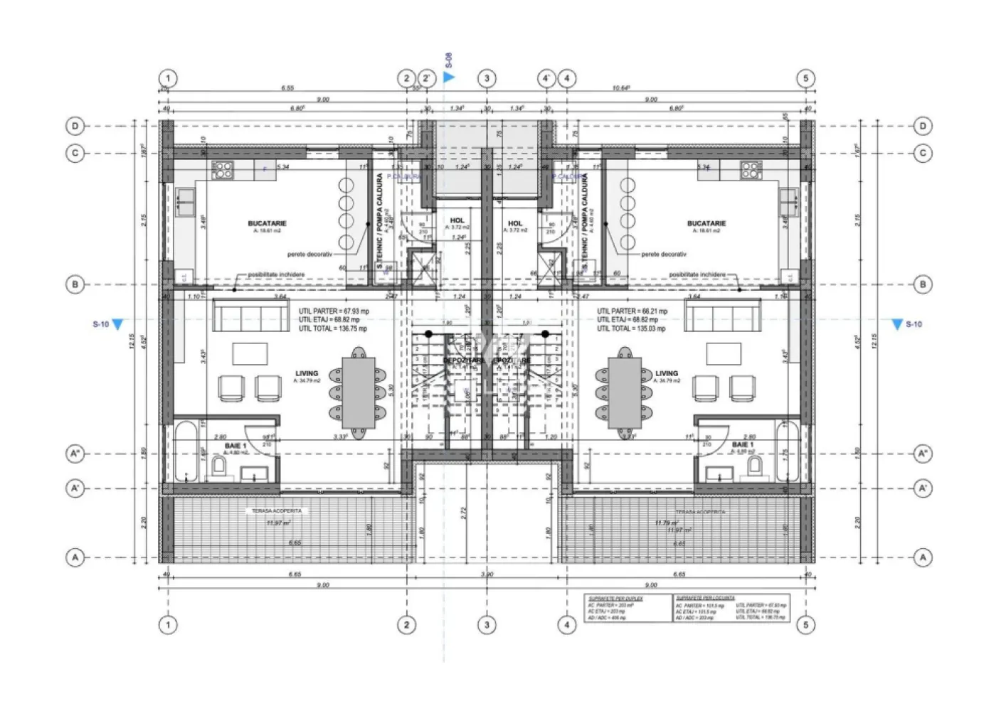
Casă tip duplex modernă de vânzare – Șura Mică, Sibiu Welhome Imobiliare vă propune spre vânzare o casă tip duplex cu arhitectură modernă, situată la ieșirea din Șura Mică, într-o zonă liniștită și aerisită, la doar câteva minute de Sibiu. Proprietatea se remarcă prin designul contemporan, suprafețele generoase și calitatea construcției. Proiectul este realizat cu atenție la detalii și materiale de calitate, fiind gândit pentru familiile care își doresc confort, spațiu și o locuință modernă. Casa are o suprafață utilă de 140 mp și este amplasată pe un teren de 350 mp, oferind aproximativ 260 mp de curte liberă, ideală pentru amenajarea unei zone de relaxare, a unei terase sau a unui spațiu de joacă pentru copii. Interiorul este predat la alb, oferind viitorilor proprietari libertatea de a-și personaliza finisajele după propriul gust, iar exteriorul este finalizat la cheie. Construcția beneficiază de izolație cu vată bazaltică, element care contribuie la confortul termic și la eficiența energetică a locuinței. Caracteristici principale: • casă tip duplex • 140 mp utili • 350 mp teren total • aproximativ 260 mp curte liberă • regim de înălțime P + E • predare interior la alb • exterior la cheie • pompa de caldura • izolație cu vată bazaltică • zonă liniștită, la ieșirea din Șura Mică. Această proprietate este potrivită pentru o familie care își dorește o casă nouă, modernă și spațioasă, aproape de Sibiu, dar într-o zonă mai liniștită, departe de aglomerația orașului. 💰 Preț: 240.000 € (se vinde de pe persoană fizică) 📞 Pentru mai multe informații sau programarea unei vizionări: Ioana – 0740029352

12.03.2026 13:14
Particularități
Etaj Etaj 0
Nr. băi 3 băi
Condiție Renovat complet
Nr. Camere 4 camere
Tip imobil Triplex
Suprafață curte 260
Suprafață teren 350
Suprafață utilă 140
Facilități

Finisaje & Eficiență

  • Izolație termică

Utilități esențiale

  • Curent electric
  • Apă curentă
  • Canalizare
  • Gaz
Detalii vânzător
Logo Welhome Imobiliare logo
Welhome Imobiliare
Agenție
Vezi profil
Membru din: 22.12.2025
Calculator credit ipotecar
10%
80%
15%
EUR
1 an
35 ani
35 ani

Logo Welhome Imobiliare logo
Ultima activitate: 2 luni în urmă

Vrei mai multe detalii despre acest imobil ?

Lasă-ți datele de contact pentru a lua legătura direct cu proprietarul. Vei fi sunat în cel mai scurt timp pentru detalii despre acest imobil.

Număr telefon invalid! Te rugăm introdu numele!
Prin trimiterea solicitării confirmi că ai citit și ești de acord cu [Termenii și condițiile] și [Politica de confidențialitate] Imospot.ro.

Distribuie această listare

sau

Alte anunțuri ale utilizatorului

Poate te interesează

Filtre