Toate categoriile

Notificări
Marchează ca citite

Test notification

Anunturi salvate

Lorem ipsum dolor sit amet consectetur adipisicing elit. Doloremque soluta voluptatum omnis praesentium earum iste corrupti quos modi reprehenderit minima odio quam, dolore, repellat tempore! Recusandae ipsum odit nostrum nam.

Logo The Black Swan logo
Apartament 2 camere bloc finalizat - Militari Residence
Agenție | The Black Swan
Apartament 2 camere bloc finalizat - Militari Residence
București Jud.Bucuresti Ilfov

66.500

Descriere

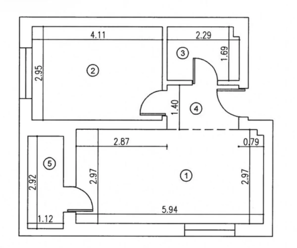
TVA INCLUS !! Comision 0% Oferta de vanzare apartament cu 2 camere decomandat, situat la etajul 1 al unui bloc nou, ce dispune de lift. Suprafața utilă de aproximativ 50 mp oferă un spațiu generos și eficient compartimentat, ideal pentru un cuplu sau o familie mică. Apartamentul este disponibil pentru mutare imediată și beneficiază de o locație excelentă în zona Militari Residence, într-o zonă liniștită, dar în apropierea tuturor facilităților necesare unei vieți confortabile: - Parc în apropiere - Școală și grădiniță în zonă - Acces rapid la transport public - Mall, magazine și centre comerciale în apropiere Imobilul este situat într-un bloc cu 3 etaje, recent construit, perfect pentru un trai modern. *Caracteristici:* - Suprafață utilă: aproximativ 50 mp - 2 camere decomandate Pentru mai multe detalii sau pentru programarea unei vizionări, nu ezitați să ne contactați!

15.03.2026 21:12
Particularități
Etaj Etaj 1
Confort Confort Confort 1
Nr. băi 1 baie
Nr. Camere 2 camere
Tip imobil Bloc apartamente
Destinație Rezidențial
Compartimentare Decomandat
Anul construcției 2025
Suprafață utilă 45
Suprafață construită 60
Facilități

Conectivitate

  • Internet Fibra optică
  • TV prin cablu

Finisaje & Eficiență

  • Izolație termică
  • Parchet
  • Gresie/Faianță

Utilități esențiale

  • Curent electric
  • Apă curentă
  • Canalizare
  • Gaz

Facilități - Dotări speciale

  • Supraveghere video
  • Centrală proprie
  • Lift
  • Interfon
Detalii vânzător
Logo The Black Swan logo
The Black Swan
Agenție
Vezi profil
Membru din: 02.02.2026
Calculator credit ipotecar
10%
80%
15%
EUR
1 an
35 ani
35 ani

Logo The Black Swan logo
Agenție
Ultima activitate: 1 lună în urmă

Vrei mai multe detalii despre acest imobil ?

Lasă-ți datele de contact pentru a lua legătura direct cu proprietarul. Vei fi sunat în cel mai scurt timp pentru detalii despre acest imobil.

Număr telefon invalid! Te rugăm introdu numele!
Prin trimiterea solicitării confirmi că ai citit și ești de acord cu [Termenii și condițiile] și [Politica de confidențialitate] Imospot.ro.

Distribuie această listare

sau

Alte anunțuri ale utilizatorului

Poate te interesează

Filtre