Toate categoriile

Notificări
Marchează ca citite

Test notification

Anunturi salvate

Lorem ipsum dolor sit amet consectetur adipisicing elit. Doloremque soluta voluptatum omnis praesentium earum iste corrupti quos modi reprehenderit minima odio quam, dolore, repellat tempore! Recusandae ipsum odit nostrum nam.

Logo Welhome Imobiliare logo
Studio generos - Selimbar, Sibiu
Agenție | Welhome Imobiliare
Studio generos - Selimbar, Sibiu
Șelimbăr Jud.Sibiu

105.000

Descriere

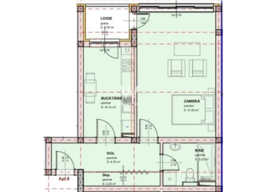
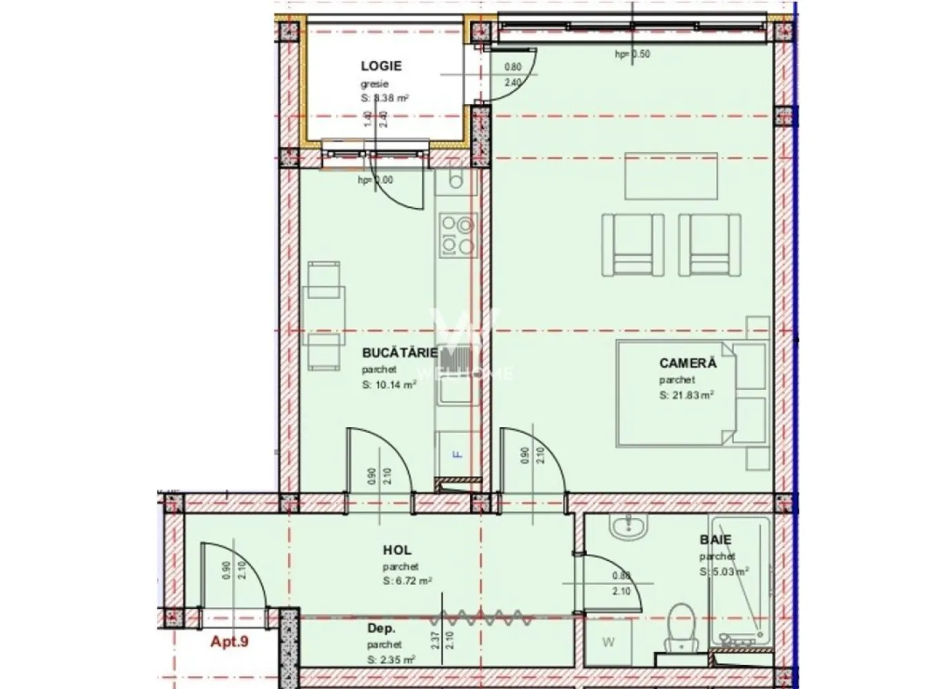
Apartament tip studio cu balcon, bloc Nou -Selimbar/ Sibiu - Apartament 47 mpu + logie 3.38 mp - Imobil cu regim de inaltime P+2E - Hol acces cu spatiu pentru depozitare, camera de zi, bucatarie, baie, balcon tip loja ( vezi schita ) Apartamentul se predă finisat: pereți gletuiți și finisați cu lavabil alb, prize, întrerupătoare, centrală, calorifere,dulie cu bec în fiecare cameră, usă la intrare, gresie pe balcon și în baie, pardoseală: parchet în camere si usi interioare Porta Doors, faianță în dreptul blatului de bucătărie obiecte sanitare: lavoar cu baterie, wc cu rezervor, cădiță dus(construită din gresie pe pardoseală), chiuveta cu cuva si baterie bucatarie Locul de parcare și finisajele sunt incluse în prețul apartamentului. - Zona placut amenajata, variante simple de acces, facilitati la indemana Un Apartament practic, bine organizat - Vino sa vezi daca poate fi Noua ta Casa !! Pret: 105,000 euro Contact: 0756033943

08.04.2026 15:13
Particularități
Etaj Etaj 2
Confort Confort Confort 1
Nr. băi 1 baie
Condiție Stare bună
Nr. Camere 1 camere
Tip imobil Bloc apartamente
Destinație Apartament la cheie
Compartimentare Decomandat
Anul construcției 2024
Suprafață utilă 47.07
Suprafață construită 55
Facilități

Conectivitate

  • Internet Fibra optică
  • TV prin cablu

Finisaje & Eficiență

  • Izolație termică

Utilități esențiale

  • Curent electric
  • Apă curentă
  • Canalizare
  • Gaz
Detalii vânzător
Logo Welhome Imobiliare logo
Welhome Imobiliare
Agenție
Vezi profil
Membru din: 22.12.2025
Calculator credit ipotecar
10%
80%
15%
EUR
1 an
35 ani
35 ani

Logo Welhome Imobiliare logo
Ultima activitate: 2 luni în urmă

Vrei mai multe detalii despre acest imobil ?

Lasă-ți datele de contact pentru a lua legătura direct cu proprietarul. Vei fi sunat în cel mai scurt timp pentru detalii despre acest imobil.

Număr telefon invalid! Te rugăm introdu numele!
Prin trimiterea solicitării confirmi că ai citit și ești de acord cu [Termenii și condițiile] și [Politica de confidențialitate] Imospot.ro.

Distribuie această listare

sau

Alte anunțuri ale utilizatorului

Poate te interesează

Filtre