Toate categoriile

Notificări
Marchează ca citite

Test notification

Anunturi salvate

Lorem ipsum dolor sit amet consectetur adipisicing elit. Doloremque soluta voluptatum omnis praesentium earum iste corrupti quos modi reprehenderit minima odio quam, dolore, repellat tempore! Recusandae ipsum odit nostrum nam.

Logo MAAC IMOBILIARE logo
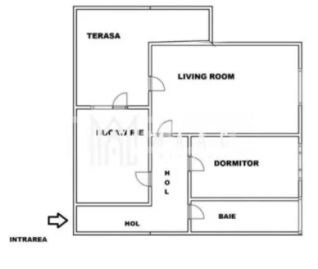
Apartament 2 camere | Etaj2 | Balcon | Decomandat | Selimbar
Agenție | MAAC IMOBILIARE
Apartament 2 camere | Etaj2 | Balcon | Decomandat | Selimbar
Sibiu Jud.Sibiu

125.900

Descriere

MAAC Imobiliare vă propune spre vânzare un apartament cu 2 camere, complet mobilat și utilat, situat în Șelimbăr.

Caracteristici:
Apartament cu 2 camere, decomandat
Suprafață utilă: 69 mp
Situat la etajul 2 al unui imobil cu regim de înălțime P+3
Bloc izolat termic
An construcție: 2010
Încălzire prin calorifere, cu centrală termică proprie
Loc de parcare suprateran.

Compartimentare:
Living, dormitor, bucătărie închisă, complet mobilată și utilată, baie dotată cu geam și cadă, hol.
Terasa cu acces atât din living, cât și din bucătărie

Avantaje:
Zonă cu acces rapid la magazine, farmacii, școli, mijloace de transport și alte puncte de interes
Ideal atât pentru locuință personală, cât și pentru investiție.

Pentru mai multe detalii precizati telefonic ca ati vazut anuntul cu ID: CP2853322

19.12.2025 00:07
Particularități
Etaj Etaj 2
Confort Confort Confort 1
Nr. băi 1 baie
Nr. Camere 2 camere
Tip imobil Bloc apartamente
Compartimentare Decomandat
Anul construcției 2010
Suprafață utilă 69
Suprafață construită 83
Facilități

Conectivitate

  • Internet Fibra optică
  • TV prin cablu
  • Wi-Fi

Finisaje & Eficiență

  • Izolație termică
  • Geamuri termopan
  • Parchet
  • Gresie/Faianță
  • Mobilier integrat / Bucătărie la comandă

Utilități esențiale

  • Curent electric
  • Apă curentă
  • Canalizare
  • Gaz

Facilități - Dotări speciale

  • Centrală proprie
  • Interfon

Facilități - Spații exterioare

  • Loc de parcare
Detalii vânzător
Logo MAAC IMOBILIARE logo
MAAC IMOBILIARE
Agenție
Vezi profil
Membru din: 18.12.2025
Calculator credit ipotecar
10%
80%
15%
EUR
1 an
35 ani
35 ani

Logo MAAC IMOBILIARE logo
Ultima activitate: 0 secunde în urmă

Vrei mai multe detalii despre acest imobil ?

Lasă-ți datele de contact pentru a lua legătura direct cu proprietarul. Vei fi sunat în cel mai scurt timp pentru detalii despre acest imobil.

Număr telefon invalid! Te rugăm introdu numele!
Prin trimiterea solicitării confirmi că ai citit și ești de acord cu [Termenii și condițiile] și [Politica de confidențialitate] Imospot.ro.

Distribuie această listare

sau

Alte anunțuri ale utilizatorului

Poate te interesează

Filtre