Toate categoriile

Notificări
Marchează ca citite

Test notification

Anunturi salvate

Lorem ipsum dolor sit amet consectetur adipisicing elit. Doloremque soluta voluptatum omnis praesentium earum iste corrupti quos modi reprehenderit minima odio quam, dolore, repellat tempore! Recusandae ipsum odit nostrum nam.

Logo Welhome Imobiliare logo
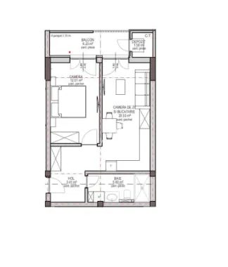
Apartament 2 camere Lacul lui Binder, Sibiu
Agenție | Welhome Imobiliare
Apartament 2 camere Lacul lui Binder, Sibiu
Sibiu Jud.Sibiu

89.000

Descriere

Apartament 2 camere situat in Sibiu, in apropierea Lacului Binder, etaj 2
Suprafata utila : 43.63 mp
Compartimentare: hol cu acces in livingul open space cu bucataria
baie
dormitor cu iesire pe balcon de 6.23mp

Predare la stadiul de alb : geamuri si usa termopan 3 foi de sticla, pereti tencuiti si gletuiti, sapa elicopterizata, centrala, incalzire in pardoseala instalatii electrice, termice si sanitare. Se poate finisa la cheie contracost!

Loc de parcare inclus în preț, cu posibilitatea achiziționării unui al doilea loc (în funcție de disponibilitate).
Apartamentele detin si un spatiu de depozitare pe balcon.

Pret : 89000 Euro tva inclus COMISION ZERO

Vizionari: 0752.088.381- Roxana

26.01.2026 11:26
Particularități
Etaj Etaj 2
Confort Confort Confort 1
Nr. băi 1 baie
Condiție Renovat complet
Nr. Camere 2 camere
Tip imobil Bloc apartamente
Compartimentare Semidecomandat
Anul construcției 2025
Suprafață utilă 43.63
Facilități

Conectivitate

  • Internet Fibra optică
  • TV prin cablu

Finisaje & Eficiență

  • Izolație termică
  • Geamuri termopan
  • Parchet
  • Gresie/Faianță

Utilități esențiale

  • Curent electric
  • Apă curentă
  • Canalizare
  • Gaz

Facilități - Dotări speciale

  • Centrală proprie
  • Interfon

Facilități - Spații exterioare

  • Loc de parcare
Detalii vânzător
Logo Welhome Imobiliare logo
Welhome Imobiliare
Agenție
Vezi profil
Membru din: 22.12.2025
Calculator credit ipotecar
10%
80%
15%
EUR
1 an
35 ani
35 ani

Logo Welhome Imobiliare logo
Ultima activitate: 3 luni în urmă

Vrei mai multe detalii despre acest imobil ?

Lasă-ți datele de contact pentru a lua legătura direct cu proprietarul. Vei fi sunat în cel mai scurt timp pentru detalii despre acest imobil.

Număr telefon invalid! Te rugăm introdu numele!
Prin trimiterea solicitării confirmi că ai citit și ești de acord cu [Termenii și condițiile] și [Politica de confidențialitate] Imospot.ro.

Distribuie această listare

sau

Alte anunțuri ale utilizatorului

Poate te interesează

Filtre