Toate categoriile

Notificări
Marchează ca citite

Test notification

Anunturi salvate

Lorem ipsum dolor sit amet consectetur adipisicing elit. Doloremque soluta voluptatum omnis praesentium earum iste corrupti quos modi reprehenderit minima odio quam, dolore, repellat tempore! Recusandae ipsum odit nostrum nam.

Logo Welhome Imobiliare logo
Apartament cu gradina de 200mp, Calea Cisnadiei, Sibiu -
Agenție | Welhome Imobiliare
Apartament cu gradina de 200mp, Calea Cisnadiei, Sibiu -
Sibiu Jud.Sibiu

204.000

Descriere

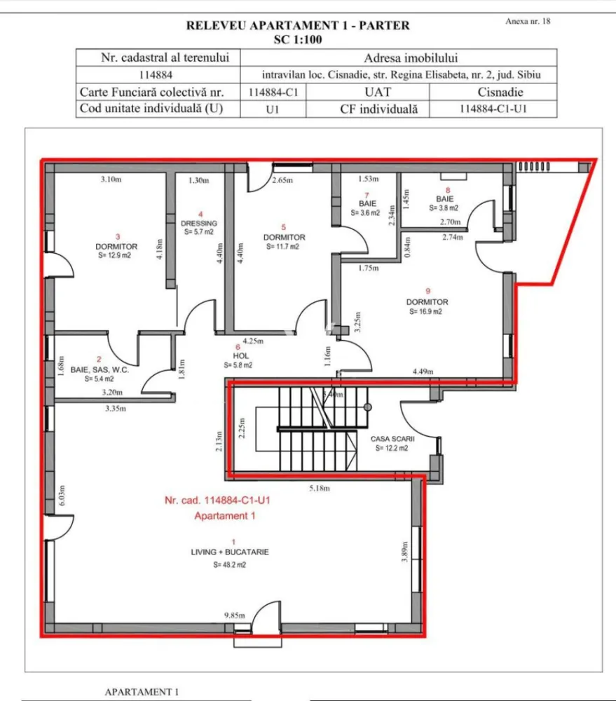
COMISION ZERO la cumparator Apartament foarte spatios in suprafata de 115mp + curte de 200mp. Este complet finisat LA CHEIE, cu mobila de bucatarie si electrocasniele incluse (conform fotografii) Compartimentare: Hol, living cu bucatarie, trei dormitoare dintre care unul cu baie proprie, di unul cu baie proprie si dressing. Acces auto cu poarta automatizata Sistem videointerfon Automatizare incalzire pardoseala cu termostat pt fiecare incapere 3 bai complet finisate / mobilate Centrala Bosch Curtea beneficiaza e intimitate, apartamentul este situat la parter intr-un bloc cu regim de inaltime scazut, P+2 Pret: 204.000€ + TVA Cash sau credit ipotecar Proiect nou si exclusivist, cu doar 4 apartamente de 2, 3 și 4 camere, concepute pentru confortul și stilul tău de viață. Puncte forte: Izolație cu vată bazaltică de 10 cm pentru confort termic maxim Balustrade din sticlă securizată pentru un design modern și siguranță Supraveghere video non-stop pentru siguranța ta și a familiei tale Încălzire în pardoseală – confortul suprem în fiecare cameră Geamuri premium cu 3 foi de sticlă + 3 garnituri pentru izolare fonică și termică excelentă Centrală termică Bosch în condensare, eficientă și economică Iluminat exterior pentru un ambient plăcut și sigur Balcoane și terase hidroizolate pentru durabilitate și protecție în timp Finisaje de înaltă calitate, care aduc un plus de eleganță fiecărui detaliu

07.04.2026 16:01
Particularități
Etaj Etaj 0
Confort Confort Lux
Nr. băi 3 băi
Condiție Necesită renovare
Nr. Camere 4 camere
Tip imobil Bloc apartamente
Destinație Apartament la cheie, Apartament cu gradina, Apartament Intabulat
Compartimentare Decomandat
Suprafață curte 200
Anul construcției 2025
Suprafață utilă 115
Suprafață construită 140
Facilități

Conectivitate

  • Internet Fibra optică
  • TV prin cablu

Finisaje & Eficiență

  • Izolație termică
  • Geamuri termopan
  • Parchet
  • Gresie/Faianță
  • Mobilier integrat / Bucătărie la comandă

Utilități esențiale

  • Curent electric
  • Apă curentă
  • Canalizare
  • Gaz

Facilități - Dotări speciale

  • Supraveghere video
  • Centrală proprie
  • Interfon

Facilități - Spații exterioare

  • Loc de parcare
Detalii vânzător
Logo Welhome Imobiliare logo
Welhome Imobiliare
Agenție
Vezi profil
Membru din: 22.12.2025
Calculator credit ipotecar
10%
80%
15%
EUR
1 an
35 ani
35 ani

Logo Welhome Imobiliare logo
Ultima activitate: 2 luni în urmă

Vrei mai multe detalii despre acest imobil ?

Lasă-ți datele de contact pentru a lua legătura direct cu proprietarul. Vei fi sunat în cel mai scurt timp pentru detalii despre acest imobil.

Număr telefon invalid! Te rugăm introdu numele!
Prin trimiterea solicitării confirmi că ai citit și ești de acord cu [Termenii și condițiile] și [Politica de confidențialitate] Imospot.ro.

Distribuie această listare

sau

Alte anunțuri ale utilizatorului

Poate te interesează

Filtre