Toate categoriile

Notificări
Marchează ca citite

Test notification

Anunturi salvate

Lorem ipsum dolor sit amet consectetur adipisicing elit. Doloremque soluta voluptatum omnis praesentium earum iste corrupti quos modi reprehenderit minima odio quam, dolore, repellat tempore! Recusandae ipsum odit nostrum nam.

Logo Welhome Imobiliare logo
Penthouse 94mp, Sibiu COMISION ZERO
Agenție | Welhome Imobiliare
Penthouse 94mp, Sibiu COMISION ZERO
Sibiu Jud.Sibiu

218.000

Descriere

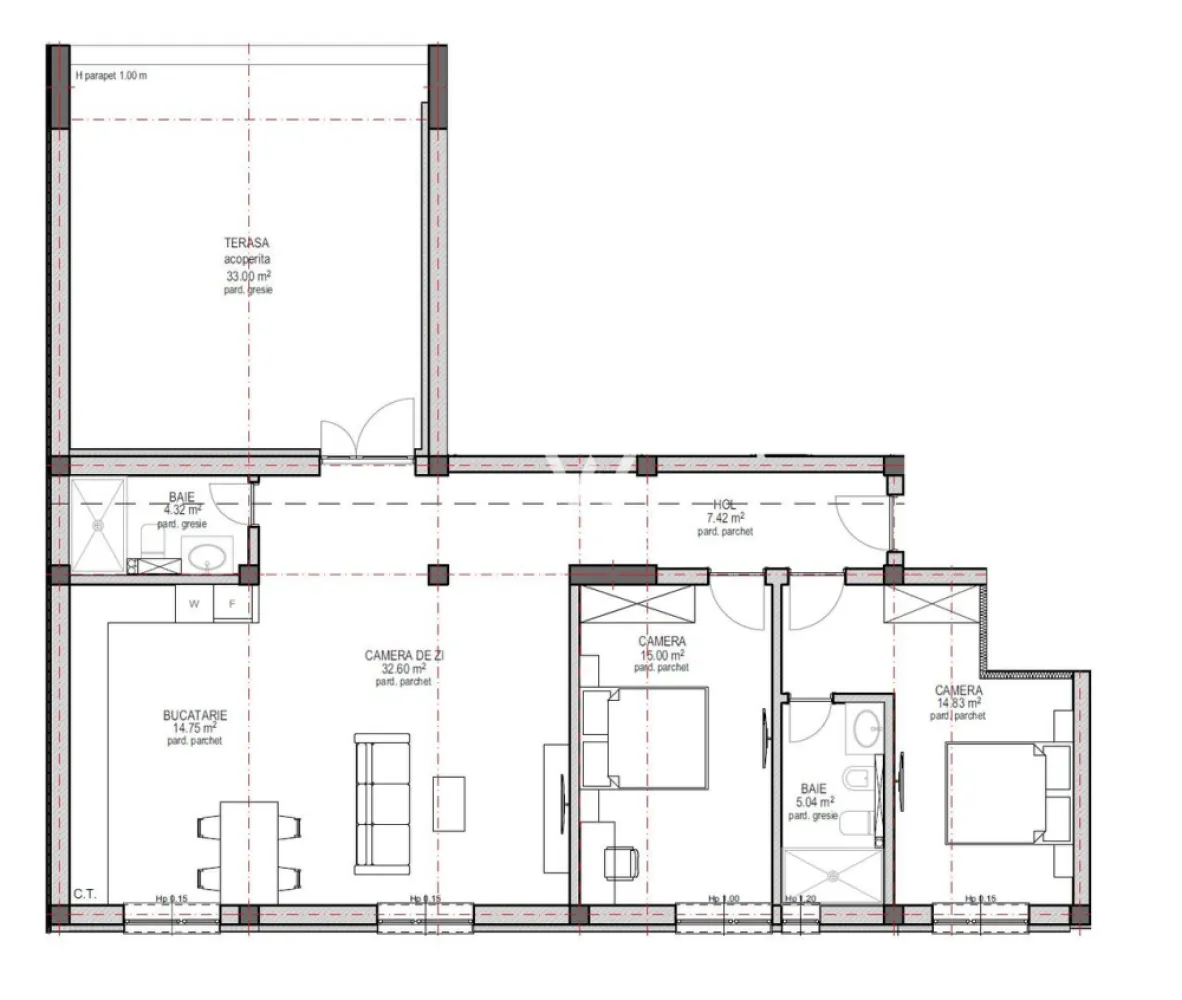
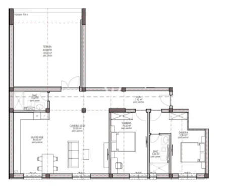
DIRECT DEZVOLTATOR, FARA COMISION Va prezentam un ansamblu compus din 60 de apartamente situat in cartierul Tiglari, laga Lacul lui Binder ✅ 14 apartamente cu grădină proprie – pentru relaxare, joacă sau grătar ✅ 4 penthouse-uri spectaculoase – cu terase generoase și vedere panoramică ✅ 42 de apartamente cu 2 camere cu balcon si vedere spre lac Suprafata utila : 93.96 mp + Terasa 33 mp utili. Compartimentare: hol cu acces in livingul open space cu bucataria, baie, 2 dormitoare, unul cu baie proprie. (VEZI SCHITA_ Predare la stadiul de alb : geamuri si usa termopan 3 foi de sticla, pereti tencuiti si gletuiti, sapa elicopterizata, centrala, incalzire in pardoseala instalatii electrice, termice si sanitare. Se poate finisa la cheie contracost! Loc de parcare inclus în preț, cu posibilitatea achiziționării unui al doilea loc (în funcție de disponibilitate). Pret penthouse : 218.000 euro TVA INCLUS cash sau credit bancar Detalii si vizionari: 0752.088.381 Roxana

16.03.2026 12:43
Particularități
Etaj Etaj 4
Confort Confort Lux
Nr. băi 2 băi
Condiție Renovat complet
Nr. Camere 3 camere
Tip imobil Bloc apartamente
Destinație Apartament penthouse
Compartimentare Decomandat
Anul construcției 2025
Suprafață utilă 93.96
Facilități

Conectivitate

  • Internet Fibra optică
  • TV prin cablu

Finisaje & Eficiență

  • Parchet
  • Gresie/Faianță

Utilități esențiale

  • Curent electric
  • Apă curentă
  • Canalizare
  • Gaz

Facilități - Dotări speciale

  • Centrală proprie
  • Interfon

Facilități - Spații exterioare

  • Loc de parcare
Detalii vânzător
Logo Welhome Imobiliare logo
Welhome Imobiliare
Agenție
Vezi profil
Membru din: 22.12.2025
Calculator credit ipotecar
10%
80%
15%
EUR
1 an
35 ani
35 ani

Logo Welhome Imobiliare logo
Ultima activitate: 2 luni în urmă

Vrei mai multe detalii despre acest imobil ?

Lasă-ți datele de contact pentru a lua legătura direct cu proprietarul. Vei fi sunat în cel mai scurt timp pentru detalii despre acest imobil.

Număr telefon invalid! Te rugăm introdu numele!
Prin trimiterea solicitării confirmi că ai citit și ești de acord cu [Termenii și condițiile] și [Politica de confidențialitate] Imospot.ro.

Distribuie această listare

sau

Alte anunțuri ale utilizatorului

Poate te interesează

Filtre