Toate categoriile

Notificări
Marchează ca citite

Test notification

Anunturi salvate

Lorem ipsum dolor sit amet consectetur adipisicing elit. Doloremque soluta voluptatum omnis praesentium earum iste corrupti quos modi reprehenderit minima odio quam, dolore, repellat tempore! Recusandae ipsum odit nostrum nam.

Logo Immosell logo
Teren ultracentral cu proiect si aut. de construcție–oportunitate rara
Agenție | Immosell
Teren ultracentral cu proiect si aut. de construcție–oportunitate rara
Oradea Jud.Bihor

140.000

Descriere

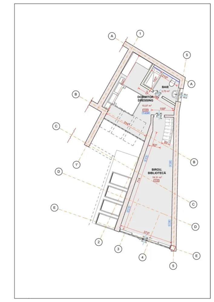
Immosell.ro vă propune spre vânzare un teren pentru casă situat ultracentral, într-una dintre cele mai dorite și liniștite zone ale orașului. Proprietatea are o suprafață de 110 mp și este amplasată pe strada I.C. Brătianu, în imediata apropiere a parcului – o locație excelentă, care îmbină perfect liniștea zonei rezidențiale cu accesul rapid la centrul orașului. Un avantaj major al acestei proprietăți este faptul că se vinde cu proiect și autorizație de construcție, economisind timp și costuri importante pentru viitorul proprietar. Astfel, puteți începe construcția imediat. ✔ Zonă ultracentrală și foarte căutată ✔ Aproape de parc ✔ Proiect + autorizație de construcție incluse ✔ Ideal pentru locuință sau investiție Preț: 140.000 € negociabil Pentru mai multe detalii sau pentru programarea unei vizionări, nu ezitați să ne contactați. Contact: Sorin Gligor Tel: 0731290032

07.03.2026 21:54
Particularități
Nr. Camere 3 camere
Tip imobil Casă individuală
Suprafață curte 110
Suprafață teren 110
Suprafață utilă 110
Suprafață construită 110
Facilități

Utilități esențiale

  • Curent electric
  • Apă curentă
  • Canalizare
  • Gaz
Detalii vânzător
Logo Immosell logo
Immosell
Agenție
Vezi profil
Membru din: 10.02.2026
Calculator credit ipotecar
10%
80%
15%
EUR
1 an
35 ani
35 ani

Logo Immosell logo
Agenție
Ultima activitate: 0 secunde în urmă

Vrei mai multe detalii despre acest imobil ?

Lasă-ți datele de contact pentru a lua legătura direct cu proprietarul. Vei fi sunat în cel mai scurt timp pentru detalii despre acest imobil.

Număr telefon invalid! Te rugăm introdu numele!
Prin trimiterea solicitării confirmi că ai citit și ești de acord cu [Termenii și condițiile] și [Politica de confidențialitate] Imospot.ro.

Distribuie această listare

sau

Alte anunțuri ale utilizatorului

Poate te interesează

Filtre