Toate categoriile

Notificări
Marchează ca citite

Test notification

Anunturi salvate

Lorem ipsum dolor sit amet consectetur adipisicing elit. Doloremque soluta voluptatum omnis praesentium earum iste corrupti quos modi reprehenderit minima odio quam, dolore, repellat tempore! Recusandae ipsum odit nostrum nam.

Logo MAAC IMOBILIARE logo
Casa moderna - 297 MPU I Vasile Aaron I Garaj I 318 MP Teren
Agenție | MAAC IMOBILIARE
Casa moderna - 297 MPU I Vasile Aaron I Garaj I 318 MP Teren
Sibiu Jud.Sibiu

449.000

Descriere

MAAC Imobiliare vă propune spre vânzare o proprietate complet renovată în 2025, caracterizată printr-un design modern, compartimentare inteligentă și multiple posibilități de utilizare – locuință, birou, spațiu comercial sau investiție în regim hotelier.

Caracteristici generale:

Proprietatea este alcătuită dintr-o casă D+P+E+M, teren cu acces pe două străzi și garaj individual.
Construcția a fost extinsă și reconfigurată pentru a răspunde cerințelor actuale de confort, funcționalitate și eficiență energetică.

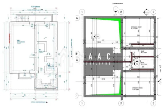
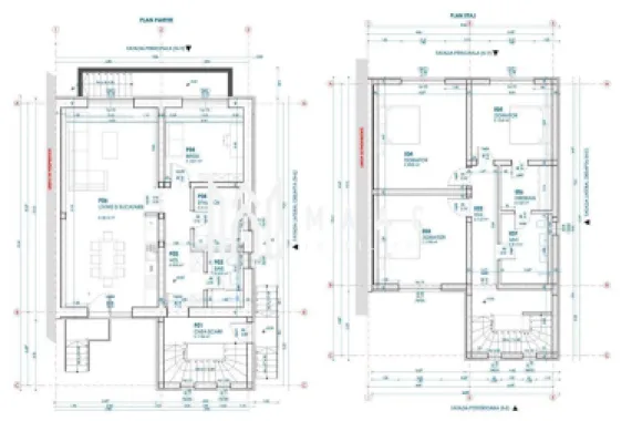
Detalii construcție – 297 mp utili

Demisol (81 mp): 2 camere, baie, spațiu tehnic, zonă de depozitare/pivniță sub casa scării.

Parter (81 mp): living generos cu bucătărie, cameră suplimentară, baie, spațiu tehnic și hol.

Etaj (81 mp): dormitor matrimonial cu dressing walk-in, baie cu două intrări, spațiu tehnic și 2 camere cu design pe două niveluri – cu zonă de living multifuncțională la nivelul inferior și spațiu privat (birou/dressing/odihnă) la nivelul superior, cu baie proprie.

Mansardă (49 mp): două zone pentru dormitor/birou, două băi și două dressinguri walk-in, conectate la camerele multifuncționale de la etaj.

Acest concept arhitectural oferă eleganță, volum și flexibilitate, fiind ideal pentru o amenajare premium și un stil de viață contemporan.

Teren – 318 mp

Alei pietonale și acces auto (capacitate 2–3 mașini în interiorul proprietății, plus 2 locuri suplimentare în exterior)

Grădină amenajabilă și spațiu pentru terasă

Acces dublu: auto și pietonal în față, acces pietonal suplimentar în spate

Garaj de 20 mp – cu șaht auto, structură din cărămidă și placă de beton

Dotări și specificații tehnice:

Două accese separate, fiecare deservind zone diferite ale casei, ambele prevăzute cu sisteme de control acces și video-interfon.

Sistem de supraveghere video (8 puncte de monitorizare).

Demisol cu branșamente separate la electricitate (monofazat) și gaz – cu posibilitate de funcționare independentă.

Parter, etaj și mansardă alimentate prin branșament electric trifazat și gaz separat.

Instalații refăcute complet: apă, canalizare nouă, fibră optică.

Izolație exterioară cu vată bazaltică de 10 cm – performanță termică și fonică superioară.

Soclu izolat cu polistiren extrudat de 5 cm – protecție împotriva umezelii.

Tâmplărie PVC premium cu geam termopan.

Pereți solizi: cărămidă plină la parter (40 cm), zidărie Porotherm la etaj și mansardă (25 cm).

Trasee electrice și termice pregătite pentru sistem de climatizare.

🧭 Avantaje majore:

✅ Proprietate complet renovată și modernizată în 2025
✅ Compartimentare inteligentă, cu posibilitatea utilizării fiecărui nivel independent
✅ Ideală pentru rezidență, birouri, clinici sau regim hotelier
✅ Acces dublu și garaj propriu
✅ Finisaje și materiale de înaltă calitate
✅ Oportunitate excelentă de investiție
Pentru mai multe detalii și vizionări, precizati telefonic ca ati vazut anuntul cu ID:CP2771546

19.12.2025 12:14
Particularități
Etaj Etaj 1
Condiție Renovat complet
Nr. Camere 7 camere
Tip imobil Casă individuală
Suprafață teren 318
Suprafață utilă 297
Suprafață construită 4158
Facilități

Finisaje & Eficiență

  • Izolație termică
  • Geamuri termopan

Utilități esențiale

  • Curent electric
  • Apă curentă
  • Canalizare

Facilități - Dotări speciale

  • Aer condiționat

Facilități - Spații exterioare

  • Garaj
  • Loc de parcare
Detalii vânzător
Logo MAAC IMOBILIARE logo
MAAC IMOBILIARE
Agenție
Vezi profil
Membru din: 18.12.2025
Calculator credit ipotecar
10%
80%
15%
EUR
1 an
35 ani
35 ani

Logo MAAC IMOBILIARE logo
Ultima activitate: 0 secunde în urmă

Vrei mai multe detalii despre acest imobil ?

Lasă-ți datele de contact pentru a lua legătura direct cu proprietarul. Vei fi sunat în cel mai scurt timp pentru detalii despre acest imobil.

Număr telefon invalid! Te rugăm introdu numele!
Prin trimiterea solicitării confirmi că ai citit și ești de acord cu [Termenii și condițiile] și [Politica de confidențialitate] Imospot.ro.

Distribuie această listare

sau

Alte anunțuri ale utilizatorului

Poate te interesează

Filtre