Toate categoriile

Notificări
Marchează ca citite

Test notification

Anunturi salvate

Lorem ipsum dolor sit amet consectetur adipisicing elit. Doloremque soluta voluptatum omnis praesentium earum iste corrupti quos modi reprehenderit minima odio quam, dolore, repellat tempore! Recusandae ipsum odit nostrum nam.

Logo MAAC IMOBILIARE logo
Cladire de birouri I 12 camere I Parcare I Calea Dumbravii
Agenție | MAAC IMOBILIARE
Cladire de birouri I 12 camere I Parcare I Calea Dumbravii
Sibiu Jud.Sibiu

3.950

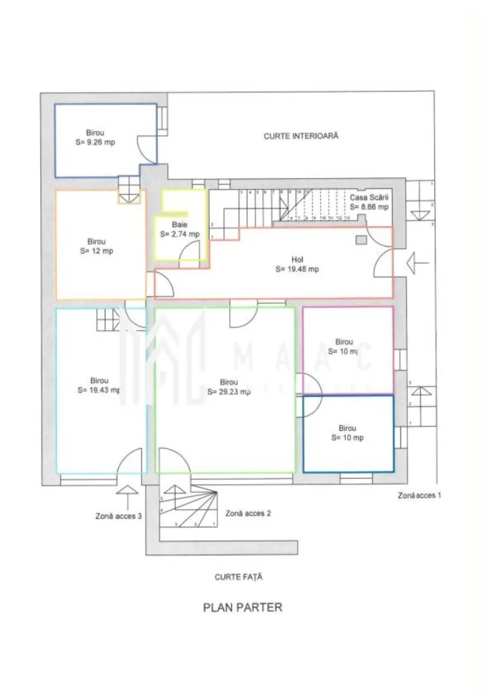
Descriere

MAAC IMOBILIARE ofera, spre închiriere, o clădire de birouri cu poziționare și configurare ideală pentru activități corporate, concepută pentru a susține eficient operațiuni de business, servicii profesionale și activități administrative de nivel înalt.

Asezata pe un teren de cca 420mp, cladirea, cu amprenta la sol de 160mp, are o compartimentare inteligentă, adaptabilă diverselor structuri organizaționale, oferind un echilibru optim între spații individuale, zone de colaborare și facilități comune.

La parter- 6 birouri, baie, hol de acces, casa scarii; la etaj-4 birouri, 2 bai, 2 spatii de arhivare, terasa; subsol-sala conferinte, spatiu relaxare, bucatarie cu loc de luat masa, spatii arhivare, depozitare.

Incalzirea- centrala termica pe gaz, calorifere.
Instalatie de aer conditionat.
In curte pot fi parcate 6 masini.

In spatele imobilului, curte-zonă de relaxare pentru angajați / spațiu informal de networking.
La parter-configurație flexibilă, ușor de personalizat- funcție de nevoile chiriașului.
Spații bine proporționate, luminoase și eficiente operațional

Proprietatea oferă stabilitate contractuală, fiind disponibilă pentru închiriere pe termen lung (ideal-minim 5 ani)
Confera o imagine profesională, potrivită pentru companii care își doresc un spațiu reprezentativ.

Destinații ideale:
✔ Sediu companie / headquarter
✔ Firmă de consultanță, avocatură, audit
✔ IT, software, digital services
✔ Educație corporate, training, coaching
✔ Servicii profesionale, administrative sau financiare

Proprietatea se adresează exclusiv chiriașilor care caută continuitate, stabilitate și un spațiu aliniat standardelor inalte, într-un cadru profesional și bine organizat; oferă stabilitate contractuală, fiind disponibilă pentru închiriere pe termen lung (ideal-minim 5 ani)
Predarea - fara mobila.
Se inchiriaza de pe persoana fizica.
Se percepe garantie in cuantumul a 3 chirii lunare.

Pentru mai multe detalii precizati telefonic ca ati vazut anuntul cu ID:CP2882384

22.01.2026 09:35
Particularități
Etaj Etaj 0
Nr. băi 3 băi
Nr. Camere 12 camere
Destinație Birouri, Comercial
Anul construcției 2008
Suprafață utilă 310
Facilități

Momentan, această proprietate nu are facilități specificate.

Detalii vânzător
Logo MAAC IMOBILIARE logo
MAAC IMOBILIARE
Agenție
Vezi profil
Membru din: 18.12.2025
Logo MAAC IMOBILIARE logo
Ultima activitate: 0 secunde în urmă

Vrei mai multe detalii despre acest imobil ?

Lasă-ți datele de contact pentru a lua legătura direct cu proprietarul. Vei fi sunat în cel mai scurt timp pentru detalii despre acest imobil.

Număr telefon invalid! Te rugăm introdu numele!
Prin trimiterea solicitării confirmi că ai citit și ești de acord cu [Termenii și condițiile] și [Politica de confidențialitate] Imospot.ro.

Distribuie această listare

sau

Alte anunțuri ale utilizatorului

Poate te interesează

Filtre