Toate categoriile

Notificări
Marchează ca citite

Test notification

Anunturi salvate

Lorem ipsum dolor sit amet consectetur adipisicing elit. Doloremque soluta voluptatum omnis praesentium earum iste corrupti quos modi reprehenderit minima odio quam, dolore, repellat tempore! Recusandae ipsum odit nostrum nam.

Logo MAAC IMOBILIARE logo
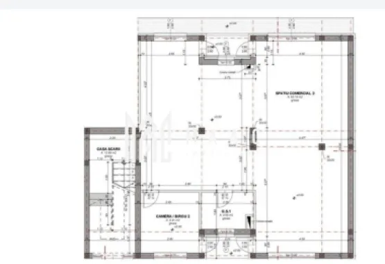
Spatiu Comercial | Open-space | 4 locuri de parcare | 93MPU | Arhitectilor
Agenție | MAAC IMOBILIARE
Spatiu Comercial | Open-space | 4 locuri de parcare | 93MPU | Arhitectilor
Sibiu Jud.Sibiu

187.000

Descriere

MAAC Imobiliare vă oferă oportunitatea de a achiziționa un spațiu comercial modern, situat într-o zonă cu trafic intens și vizibilitate excelentă, ideal pentru diverse activități comerciale sau birouri. Acest spațiu beneficiază de o amplasare strategică, într-un cartier în plină dezvoltare, cu o densitate ridicată de locuitori.

Caracteristici principale:
🏢 Suprafață construită: 110 mp
📐 Suprafață utilă: 93 mp, compartimentare eficientă – open space, birou și grup sanitar
🚪 Acces dublu: intrare principală + acces secundar pentru aprovizionare
🚗 Parcare inclusă: 4 locuri de parcare private
⚡ Utilități & dotări: curent trifazat, sistem de supraveghere video TVCI, sistem de alarmă

Puncte forte:
✔ Poziționare premium – parter de vilă P+2, cu acces rapid și expunere maximă
✔ Vizibilitate ridicată într-o zonă cu trafic auto și pietonal intens
✔ Potrivit pentru multiple activități – ideal pentru showroom, cabinet medical, birouri, retail sau servicii
✔ Investiție avantajoasă într-un cartier aflat în plină dezvoltare

Dacă sunteți în căutarea unui spațiu comercial versatil, care să ofere vizibilitate, accesibilitate și funcționalitate, această proprietate reprezintă o oportunitate excelentă.

📞 Pentru informații suplimentare și programarea unei vizionări, contactați MAAC Imobiliare, menționând ID-ul anunțului: CP2388804.

19.12.2025 13:57
Particularități
Etaj Etaj 0
Nr. băi 1 baie
Anul construcției 2015
Suprafață utilă 93
Suprafață construită 110
Facilități

Facilități - Dotări speciale

  • Sistem de securitate
  • Supraveghere video
Detalii vânzător
Logo MAAC IMOBILIARE logo
MAAC IMOBILIARE
Agenție
Vezi profil
Membru din: 18.12.2025
Calculator credit ipotecar
10%
80%
15%
EUR
1 an
35 ani
35 ani

Logo MAAC IMOBILIARE logo
Ultima activitate: 0 secunde în urmă

Vrei mai multe detalii despre acest imobil ?

Lasă-ți datele de contact pentru a lua legătura direct cu proprietarul. Vei fi sunat în cel mai scurt timp pentru detalii despre acest imobil.

Număr telefon invalid! Te rugăm introdu numele!
Prin trimiterea solicitării confirmi că ai citit și ești de acord cu [Termenii și condițiile] și [Politica de confidențialitate] Imospot.ro.

Distribuie această listare

sau

Alte anunțuri ale utilizatorului

Poate te interesează

Filtre