Toate categoriile

Notificări
Marchează ca citite

Test notification

Anunturi salvate

Lorem ipsum dolor sit amet consectetur adipisicing elit. Doloremque soluta voluptatum omnis praesentium earum iste corrupti quos modi reprehenderit minima odio quam, dolore, repellat tempore! Recusandae ipsum odit nostrum nam.

Logo Welhome Imobiliare logo
Spatiu industrial compus din doua corpuri in Orlat, central - Sibiu
Agenție | Welhome Imobiliare
Spatiu industrial compus din doua corpuri in Orlat, central - Sibiu
Orlat Jud.Sibiu

69.000

Descriere

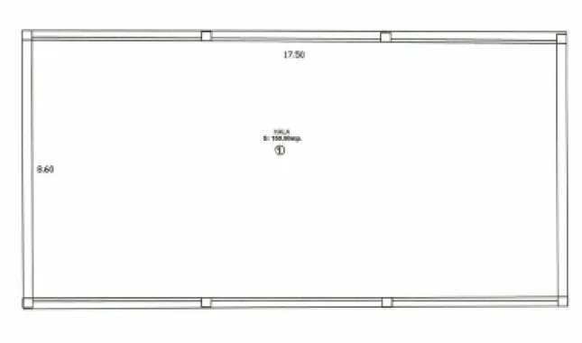
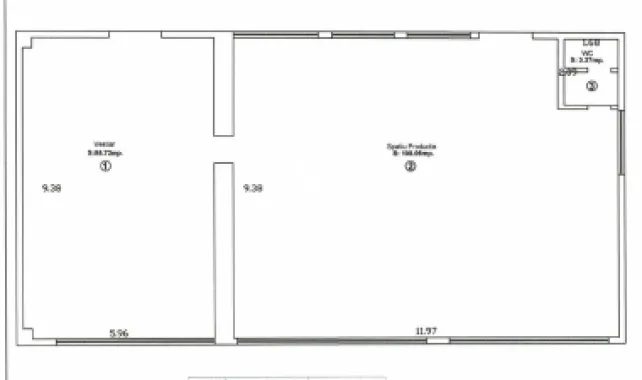
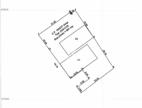
Va propunem spre vanzare o proprietate industriala compusa din 2 corpuri situat in centrul comunei Orlat, jud. Sibiu Proprietatea este compusa din: - Hala 1 cu suprafata de 185 mp - Hala 2 cu suprafata de 168 mp - Teren aferent 909 mp - Platforma betonata Proprietatea este imprejmuita cu gard si are bransamente la utilitati apa, canaalizare, energie electrica, gaze naturale (in apropiere). Cladirile necesita lucrari de reparatii. Nu exista acces TIR. Pret: 69.000 euro.

02.03.2026 08:21
Particularități
Etaj Etaj 0
Nr. băi 1 baie
Nr. Camere 2 camere
Suprafață teren 907
Anul construcției 1980
Suprafață utilă 320
Suprafață construită 353
Facilități

Utilități disponibile

  • Curent electric
  • Apă curentă
  • Gaz
  • Canalizare
Detalii vânzător
Logo Welhome Imobiliare logo
Welhome Imobiliare
Agenție
Vezi profil
Membru din: 22.12.2025
Calculator credit ipotecar
10%
80%
15%
EUR
1 an
35 ani
35 ani

Logo Welhome Imobiliare logo
Ultima activitate: 3 luni în urmă

Vrei mai multe detalii despre acest imobil ?

Lasă-ți datele de contact pentru a lua legătura direct cu proprietarul. Vei fi sunat în cel mai scurt timp pentru detalii despre acest imobil.

Număr telefon invalid! Te rugăm introdu numele!
Prin trimiterea solicitării confirmi că ai citit și ești de acord cu [Termenii și condițiile] și [Politica de confidențialitate] Imospot.ro.

Distribuie această listare

sau

Alte anunțuri ale utilizatorului

Poate te interesează

Filtre