Toate categoriile

Notificări
Marchează ca citite

Test notification

Anunturi salvate

Lorem ipsum dolor sit amet consectetur adipisicing elit. Doloremque soluta voluptatum omnis praesentium earum iste corrupti quos modi reprehenderit minima odio quam, dolore, repellat tempore! Recusandae ipsum odit nostrum nam.

Avatar Tomescu Marius logo
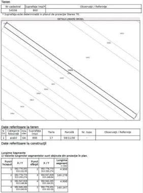
Teren • Dărăști-Ilfov
Tomescu Marius
Teren • Dărăști-Ilfov
Dărăști-Ilfov , Cartier Dărăști-Ilfov, Jud.Ilfov

16.000

Descriere

Oportunitate investiție. Teren intravilan încadrat ca arabil, situat în Dărăști-Ilfov (CF 54558), într-o zonă în dezvoltare accelerată, cu acces rapid către Autostrada A0 și București. Potrivit pentru investiție, cu potențial ridicat de valorificare pe termen mediu. Localizare: ~9 minute până la Măgurele ~18 minute până în București. Zonă în expansiune, influențată direct de dezvoltarea infrastructurii (A0), ceea ce susține creșterea valorii terenurilor și oportunități pentru rezidențial, logistic sau depozitare.


23.04.2026 16:02
Particularități
PUZ PUZ efectuat
Cale acces Acces drum forestier
Destinație Agricol
Utilități Fără utilități
Poziționare Intravilan
Deschidere front 5
Suprafață teren 800
Certificat urbanism Fără Certificat
Facilități

Caracteristici teren

  • Teren plan
Detalii vânzător
Avatar Tomescu Marius logo
Tomescu Marius
Privat
Vezi profil
Membru din: 21.04.2026
Calculator credit ipotecar
10%
80%
15%
EUR
1 an
35 ani
35 ani

Avatar Tomescu Marius logo
Ultima activitate: 0 secunde în urmă

Vrei mai multe detalii despre acest imobil ?

Lasă-ți datele de contact pentru a lua legătura direct cu proprietarul. Vei fi sunat în cel mai scurt timp pentru detalii despre acest imobil.

Număr telefon invalid! Te rugăm introdu numele!
Prin trimiterea solicitării confirmi că ai citit și ești de acord cu [Termenii și condițiile] și [Politica de confidențialitate] Imospot.ro.

Distribuie această listare

sau

Alte anunțuri ale utilizatorului

Poate te interesează

Filtre